Molslaan 132, 2611RP Delft
Ontvang updates voor Centrum
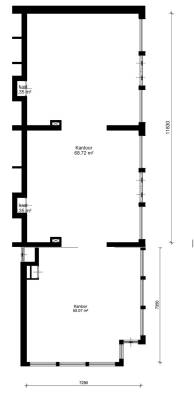
Dit bedrijfspand op het adres Molslaan 132 te Delft is geschikt als winkelruimte. Het betreft hier bestaande bouw uit 1990 met energielabel C. Deze winkelruimte heeft een oppervlakte van 119 m² en bestaat uit 1 bouwlaag.
Bekijk alle bedrijfspanden in Centrum
Meld je dan GRATIS aan voor de Oozo Alert service voor Centrum
Instellen
© 2012 - 2025 OOZO.nl - info@oozo.nl - Gegevens verwijderen? | Disclaimer | Privacy statement XS SM MD LG