Woning Coornhertkade 129 Alkmaar

Coornhertkade 129, 1813VZ Alkmaar

Ontvang updates voor Oud-Overdie

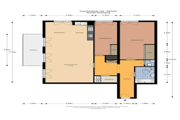
Het adres van deze woning uit 2009 is Coornhertkade 129 te Alkmaar. Het pand heeft een oppervlakte van 127m² en heeft 3 kamers kamers waarvan 2 slaapkamers. De geschatte waarde van deze woning is € 398.500.

Bekijk alle woningen in Oud-Overdie

Gegevens van Portiekflat (appartement)

Bouwjaar
2009
Geschatte waarde
€ 398.500
Oppervlakte
127 m2
Inhoud
406 m3
Aantal kamers
3 kamers
Slaapkamers
2
Badkamers
1 badkamer en 1 apart toilet
Soort bouw
Bestaande bouw
Eigendomssituatie
Volle eigendom
Ligging
Aan park, in woonwijk en beschutte ligging

Voorzieningen in de buurt

Boodschappen0,5 km
Grote supermarkt0,5 km
Cafetaria0,3 km
Restaurant0,5 km
Huisarts1,2 km
Ziekenhuis1,8 km
Kinderdagverblijf0,4 km
BSO0,8 km
Alle voorzieningen in Oud-Overdie

Binnenkijken bij Coornhertkade 129 te Alkmaar

Meer meldingen in deze omgeving

112 melding
Vrijdag 31-10-2025 om 14:07
Catsstraat, 1813ZC Alkmaar

Nieuw bedrijf
Oktober 2025
Huygensstraat 9, 1813XE Alkmaar

112 melding
Woensdag 29-10-2025 om 13:31
Coornhertkade, Alkmaar

Binnenkijken bij
Woensdag 29-10-2025
Zeglis 46, 1813SH Alkmaar

Binnenkijken bij
Woensdag 29-10-2025
Vondelstraat 15, 1813AA Alkmaar

Nieuw bedrijf
Oktober 2025
Zeglis 77B, 1813SK Alkmaar

112 melding
Maandag 27-10-2025 om 14:18
P.A.de Langeplein, Alkmaar

112 melding
Zondag 26-10-2025 om 15:28
Karel Doormankade, Alkmaar

Direct een e-mail ontvangen bij nieuwe meldingen in deze regio?

Meld je dan GRATIS aan voor de Oozo Alert service voor Oud-Overdie

Instellen

Meer nieuws in Oud-Overdie

Weten hoe eenvoudig het is om af te vallen? Zonder pillen en smeersels en zonder je in het zweet te werken!
Kijk op eenvoudig-afvallen.nl

© 2012 - 2025 OOZO.nl - info@oozo.nl - Gegevens verwijderen? | Disclaimer | Privacy statement