Woning Keizersgracht 709II Amsterdam

Keizersgracht 709II, 1017DW Amsterdam

Ontvang updates voor Amstelveldbuurt

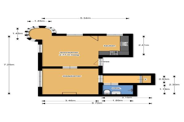
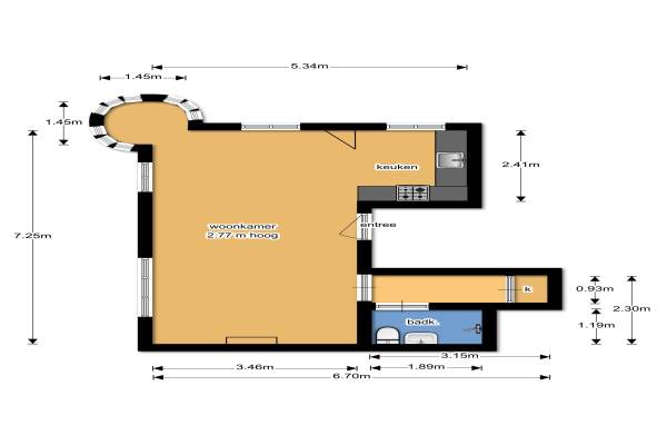
Het adres van deze woning is Keizersgracht 709II te Amsterdam. Het pand heeft een oppervlakte van 38m² en heeft 2 kamers kamers waarvan 1 slaapkamers. De geschatte waarde van deze woning is € 299.000.

Bekijk alle woningen in Amstelveldbuurt

Gegevens van Bovenwoning (appartement)

Bouwjaar
Voor 1906
Geschatte waarde
€ 299.000
Oppervlakte
38 m2
Inhoud
105 m3
Aantal kamers
2 kamers
Slaapkamers
1
Soort bouw
Bestaande bouw
Eigendomssituatie
Volle eigendom
Ligging
Aan water, aan rustige weg, in centrum, in woonwijk, vrij uitzicht en aan vaarwater

Voorzieningen in de buurt

Boodschappen0,1 km
Grote supermarkt0,3 km
Cafetaria0,1 km
Restaurant0,1 km
Huisarts0,3 km
Ziekenhuis1,4 km
Kinderdagverblijf0,2 km
BSO0,5 km
Alle voorzieningen in Amstelveldbuurt

Binnenkijken bij Keizersgracht 709II te Amsterdam

Meer meldingen in deze omgeving

Binnenkijken bij
Dinsdag 2-12-2025
Utrechtsestraat 101A, 1017VK Amsterdam

Binnenkijken bij
Dinsdag 2-12-2025
Keizersgracht 812E, 1017ED Amsterdam

Nieuw bedrijf
December 2025
Herengracht 582, 1017CJ Amsterdam

Nieuw bedrijf
December 2025
Keizersgracht 740A, 1017EX Amsterdam

Nieuw bedrijf
December 2025
Keizersgracht 810C, 1017ED Amsterdam

Nieuw bedrijf
December 2025
Utrechtsestraat 44C, 1017VP Amsterdam

Binnenkijken bij
Zaterdag 29-11-2025
Utrechtsestraat 992, 1017VK Amsterdam

Nieuw bedrijf
November 2025
Herengracht 584, 1017CJ Amsterdam

Direct een e-mail ontvangen bij nieuwe meldingen in deze regio?

Meld je dan GRATIS aan voor de Oozo Alert service voor Amstelveldbuurt

Instellen

Meer nieuws in Amstelveldbuurt

Weten hoe eenvoudig het is om af te vallen? Zonder pillen en smeersels en zonder je in het zweet te werken!
Kijk op eenvoudig-afvallen.nl

© 2012 - 2025 OOZO.nl - info@oozo.nl - Gegevens verwijderen? | Disclaimer | Privacy statement