Woning Ben van Meerendonkstraat 132 Amsterdam

Ben van Meerendonkstraat 132, 1087LN Amsterdam

Ontvang updates voor Haveneiland Oost

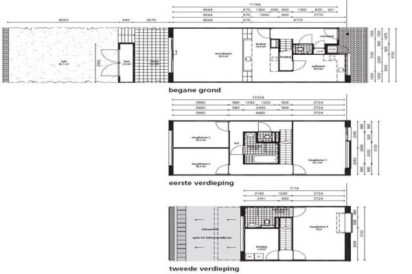
Het adres van deze woning uit 2010 is Ben van Meerendonkstraat 132 te Amsterdam. Het pand heeft een oppervlakte van 163m² en een perceeloppervlakte van 141m² en heeft 7 kamers kamers waarvan 4 slaapkamers. De geschatte waarde van deze woning is € 580.000.

Bekijk alle woningen in Haveneiland Oost

Gegevens van Herenhuis, tussenwoning (waterwoning)

Bouwjaar
2010
Geschatte waarde
€ 580.000
Oppervlakte
163 m2
Inhoud
445 m3
Aantal kamers
7 kamers
Slaapkamers
4
Badkamers
1 badkamer en 2 aparte toiletten
Soort bouw
Bestaande bouw
Eigendomssituatie
Gemeentelijk eigendom belast met erfpacht
Ligging
Aan rustige weg, aan vaarwater, aan water, in woonwijk en vrij uitzicht
Tuin
Achtertuin en zonneterras
Achtertuin
60 m² (12m diep en 5m breed)

Voorzieningen in de buurt

Boodschappen0,5 km
Grote supermarkt0,6 km
Cafetaria0,5 km
Restaurant0,5 km
Huisarts0,6 km
Ziekenhuis1,6 km
Kinderdagverblijf0,2 km
BSO0,3 km
Alle voorzieningen in Haveneiland Oost

Binnenkijken bij Ben van Meerendonkstraat 132 te Amsterdam

Meer meldingen in deze omgeving

112 melding
Zaterdag 29-11-2025 om 07:36
Jan Vrijmanstraat, Amsterdam

Binnenkijken bij
Zaterdag 29-11-2025
Jan Vrijmanstraat 225, 1087MN Amsterdam

Binnenkijken bij
Zaterdag 29-11-2025
Ben van Meerendonkstraat 295, 1087LN Amsterdam

Binnenkijken bij
Zaterdag 29-11-2025
Peter Martensstraat 43, 1087NA Amsterdam

Nieuw bedrijf
November 2025
Marius Meijboomstraat 84, 1087LD Amsterdam

Nieuw bedrijf
November 2025
Emmy Andriessestraat 344, 1087LS Amsterdam

112 melding
Maandag 24-11-2025 om 14:38
Fritz Dietrich Kahlenbergstraat, Amsterdam

112 melding
Zondag 23-11-2025 om 12:15
Jan Vrijmanstraat, Amsterdam

Direct een e-mail ontvangen bij nieuwe meldingen in deze regio?

Meld je dan GRATIS aan voor de Oozo Alert service voor Haveneiland Oost

Instellen

Meer nieuws in Haveneiland Oost

Weten hoe eenvoudig het is om af te vallen? Zonder pillen en smeersels en zonder je in het zweet te werken!
Kijk op eenvoudig-afvallen.nl

© 2012 - 2025 OOZO.nl - info@oozo.nl - Gegevens verwijderen? | Disclaimer | Privacy statement