Woning Brede Vogelstraat 13 Amsterdam

Brede Vogelstraat 13, 1022XM Amsterdam

Ontvang updates voor Vogelbuurt Noord

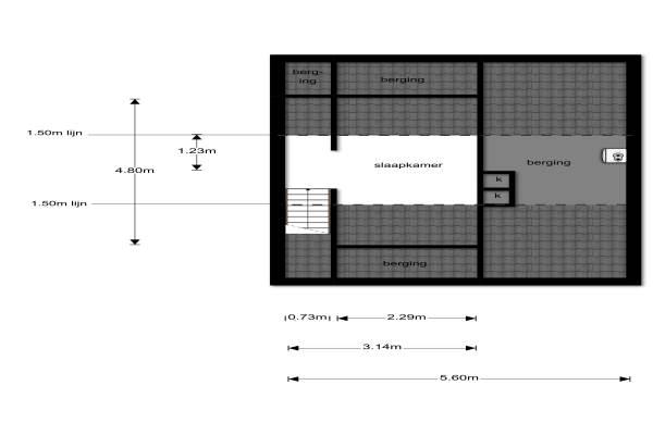
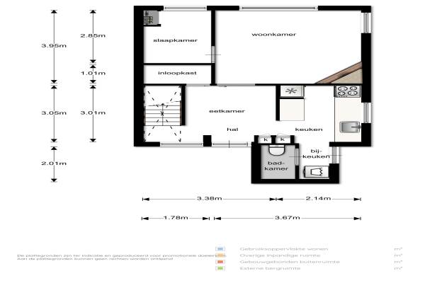
Het adres van deze woning uit 1918 is Brede Vogelstraat 13 te Amsterdam. Het pand heeft een oppervlakte van 48m² en heeft 3 kamers kamers waarvan 2 slaapkamers. De geschatte waarde van deze woning is € 250.000.

Bekijk alle woningen in Vogelbuurt Noord

Gegevens van Benedenwoning

Bouwjaar
1918
Geschatte waarde
€ 250.000
Oppervlakte
48 m2
Inhoud
130 m3
Aantal kamers
3 kamers
Slaapkamers
2
Soort bouw
Bestaande bouw

Voorzieningen in de buurt

Boodschappen0,2 km
Grote supermarkt0,6 km
Cafetaria0,3 km
Restaurant0,3 km
Huisarts0,7 km
Ziekenhuis3,0 km
Kinderdagverblijf0,4 km
BSO0,5 km
Alle voorzieningen in Vogelbuurt Noord

Binnenkijken bij Brede Vogelstraat 13 te Amsterdam

Meer meldingen in deze omgeving

Faillissement
Woensdag 3-12-2025
Kalkoenstraat 13, 1022BA Amsterdam

Nieuw bedrijf
December 2025
Lange Vogelstraat 24, 1022XZ Amsterdam

Nieuw bedrijf
December 2025
Merelstraat 7C, 1022AN Amsterdam

Binnenkijken bij
Zaterdag 29-11-2025
Zamenhofstraat 68, 1022AE Amsterdam

112 melding
Zaterdag 22-11-2025 om 00:56
Flamingostraat, Amsterdam

Binnenkijken bij
Vrijdag 21-11-2025
Zesde Vogelstraat 41, 1022XE Amsterdam

112 melding
Zaterdag 15-11-2025 om 07:24
Pelikaanstraat, Amsterdam

Binnenkijken bij
Vrijdag 14-11-2025
Zamenhofstraat 82, 1022AE Amsterdam

Direct een e-mail ontvangen bij nieuwe meldingen in deze regio?

Meld je dan GRATIS aan voor de Oozo Alert service voor Vogelbuurt Noord

Instellen

Meer nieuws in Vogelbuurt Noord

Weten hoe eenvoudig het is om af te vallen? Zonder pillen en smeersels en zonder je in het zweet te werken!
Kijk op eenvoudig-afvallen.nl

© 2012 - 2025 OOZO.nl - info@oozo.nl - Gegevens verwijderen? | Disclaimer | Privacy statement