Woning Osdorperweg 648 Amsterdam

Osdorperweg 648, 1067SZ Amsterdam

Ontvang updates voor Osdorper Bovenpolder

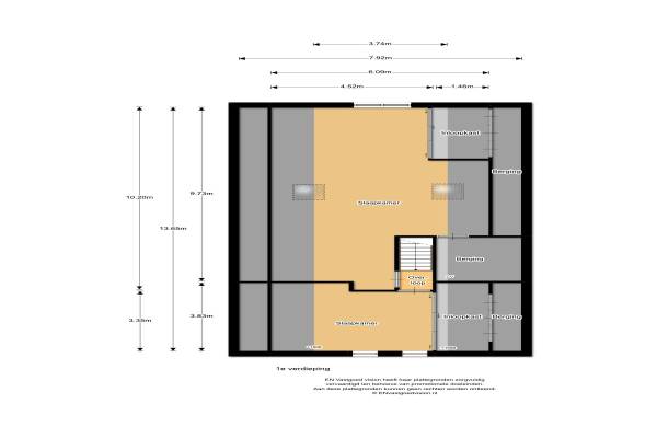
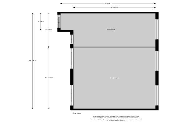
Het adres van deze woning uit 1980 is Osdorperweg 648 te Amsterdam. Het pand heeft een oppervlakte van 156m² en een perceeloppervlakte van 1137m² en heeft 4 kamers kamers waarvan 3 slaapkamers. De geschatte waarde van deze woning is € 890.000.

Bekijk alle woningen in Osdorper Bovenpolder

Gegevens van Villa, vrijstaande woning

Bouwjaar
1980
Geschatte waarde
€ 890.000
Oppervlakte
156 m2
Inhoud
490 m3
Aantal kamers
4 kamers
Slaapkamers
3
Soort bouw
Bestaande bouw
Ligging
Aan water

Voorzieningen in de buurt

Boodschappen1,4 km
Grote supermarkt1,5 km
Cafetaria1,2 km
Restaurant1,1 km
Huisarts1,3 km
Ziekenhuis5,2 km
Kinderdagverblijf1,1 km
BSO1,1 km
Alle voorzieningen in Osdorper Bovenpolder

Binnenkijken bij Osdorperweg 648 te Amsterdam

Meer meldingen in deze omgeving

Nieuw bedrijf
December 2025
Osdorperweg 532, 1067SX Amsterdam

Nieuw bedrijf
December 2025
Osdorperweg 806, 1067TC Amsterdam

Binnenkijken bij
Dinsdag 2-12-2025
Osdorperweg 567A, 1067ST Amsterdam

Binnenkijken bij
Vrijdag 28-11-2025
Osdorperweg 536, 1067SX Amsterdam

Nieuw bedrijf
November 2025
Osdorperweg 501, 1067SR Amsterdam

Binnenkijken bij
Vrijdag 14-11-2025
Osdorperweg 818, 1067TC Amsterdam

Binnenkijken bij
Dinsdag 11-11-2025
Osdorperweg 820, 1067TC Amsterdam

Nieuw bedrijf
Oktober 2025
Osdorperweg 510, 1067SX Amsterdam

Direct een e-mail ontvangen bij nieuwe meldingen in deze regio?

Meld je dan GRATIS aan voor de Oozo Alert service voor Osdorper Bovenpolder

Instellen

Meer nieuws in Osdorper Bovenpolder

Weten hoe eenvoudig het is om af te vallen? Zonder pillen en smeersels en zonder je in het zweet te werken!
Kijk op eenvoudig-afvallen.nl

© 2012 - 2025 OOZO.nl - info@oozo.nl - Gegevens verwijderen? | Disclaimer | Privacy statement