Woning Czaar Peterstraat 37A Amsterdam

Czaar Peterstraat 37A, 1018NX Amsterdam

Ontvang updates voor Czaar Peterbuurt

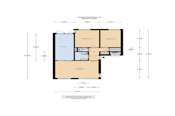
Het adres van deze woning uit 1984 is Czaar Peterstraat 37A te Amsterdam. Het pand heeft een oppervlakte van 73m² en heeft 3 kamers kamers waarvan 2 slaapkamers. De geschatte waarde van deze woning is € 325.000.

Bekijk alle woningen in Czaar Peterbuurt

Gegevens van Portiekflat (appartement)

Bouwjaar
1984
Geschatte waarde
€ 325.000
Oppervlakte
73 m2
Inhoud
264 m3
Aantal kamers
3 kamers
Slaapkamers
2
Badkamers
1 badkamer en 1 apart toilet
Soort bouw
Bestaande bouw
Eigendomssituatie
Gemeentelijk eigendom belast met erfpacht (einddatum erfpacht: 31-05-2036)
Ligging
In centrum en in woonwijk
Tuin
Achtertuin
Achtertuin
52 m² (6,8m diep en 7,6m breed)

Voorzieningen in de buurt

Boodschappen0,1 km
Grote supermarkt0,3 km
Cafetaria0,1 km
Restaurant0,2 km
Huisarts0,3 km
Ziekenhuis1,9 km
Kinderdagverblijf0,2 km
BSO0,2 km
Alle voorzieningen in Czaar Peterbuurt

Binnenkijken bij Czaar Peterstraat 37A te Amsterdam

Meer meldingen in deze omgeving

112 melding
Dinsdag 2-12-2025 om 08:27
Kraijenhoffstraat, Amsterdam

Nieuw bedrijf
December 2025
Cornelis Vermuydenstraat 56, 1018RN Amsterdam

Nieuw bedrijf
December 2025
Eerste Leeghwaterstraat 11, 1018RB Amsterdam

Nieuw bedrijf
December 2025
Kraijenhoffstraat 137A, 1018RG Amsterdam

Nieuw bedrijf
December 2025
Cornelis Vermuydenstraat 8, 1018RN Amsterdam

Nieuw bedrijf
December 2025
Kraijenhoffstraat 137A, 1018RG Amsterdam

Nieuw bedrijf
December 2025
Czaar Peterstraat 49F, 1018PA Amsterdam

Nieuw bedrijf
December 2025
Blankenstraat 13A, 1018RR Amsterdam

Direct een e-mail ontvangen bij nieuwe meldingen in deze regio?

Meld je dan GRATIS aan voor de Oozo Alert service voor Czaar Peterbuurt

Instellen

Meer nieuws in Czaar Peterbuurt

Weten hoe eenvoudig het is om af te vallen? Zonder pillen en smeersels en zonder je in het zweet te werken!
Kijk op eenvoudig-afvallen.nl

© 2012 - 2025 OOZO.nl - info@oozo.nl - Gegevens verwijderen? | Disclaimer | Privacy statement