Woning Brederodestraat 77II Amsterdam

Brederodestraat 77II, 1054VB Amsterdam

Ontvang updates voor Cremerbuurt West

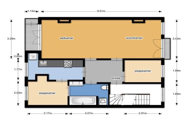
Het adres van deze woning is Brederodestraat 77II te Amsterdam. Het pand heeft een oppervlakte van 67m² en heeft 3 kamers kamers waarvan 2 slaapkamers. De geschatte waarde van deze woning is € 415.000.

Bekijk alle woningen in Cremerbuurt West

Gegevens van Bovenwoning (appartement)

Bouwjaar
Voor 1906
Geschatte waarde
€ 415.000
Oppervlakte
67 m2
Inhoud
232 m3
Aantal kamers
3 kamers
Slaapkamers
2
Badkamers
1 badkamer
Soort bouw
Bestaande bouw
Eigendomssituatie
Gemeentelijk eigendom belast met erfpacht (einddatum erfpacht: 16-04-2031)
Ligging
Aan rustige weg en in woonwijk

Voorzieningen in de buurt

Boodschappen0,1 km
Grote supermarkt0,3 km
Cafetaria0,2 km
Restaurant0,1 km
Huisarts0,4 km
Ziekenhuis2,6 km
Kinderdagverblijf0,1 km
BSO0,4 km
Alle voorzieningen in Cremerbuurt West

Binnenkijken bij Brederodestraat 77II te Amsterdam

Meer meldingen in deze omgeving

Binnenkijken bij
Dinsdag 2-12-2025
Rhijnvis Feithstraat 13H, 1054TT Amsterdam

Binnenkijken bij
Dinsdag 2-12-2025
Eerste Helmersstraat 1782, 1054EL Amsterdam

Binnenkijken bij
Dinsdag 2-12-2025
Wilhelminastraat 1282, 1054WP Amsterdam

Binnenkijken bij
Dinsdag 2-12-2025
Pieter Langendijkstraat 331, 1054XX Amsterdam

Nieuw bedrijf
December 2025
Jacob van Lennepkade 221A, 1054ZP Amsterdam

Nieuw bedrijf
December 2025
Wilhelminastraat 1583, 1054WS Amsterdam

Nieuw bedrijf
December 2025
Jacob van Lennepkade 221A, 1054ZP Amsterdam

Nieuw bedrijf
December 2025
Jacob van Lennepkade 221A, 1054ZP Amsterdam

Direct een e-mail ontvangen bij nieuwe meldingen in deze regio?

Meld je dan GRATIS aan voor de Oozo Alert service voor Cremerbuurt West

Instellen

Meer nieuws in Cremerbuurt West

Weten hoe eenvoudig het is om af te vallen? Zonder pillen en smeersels en zonder je in het zweet te werken!
Kijk op eenvoudig-afvallen.nl

© 2012 - 2025 OOZO.nl - info@oozo.nl - Gegevens verwijderen? | Disclaimer | Privacy statement