Woning Gestelsestraat 61 Eindhoven

Gestelsestraat 61, 5615LA Eindhoven

Ontvang updates voor Schrijversbuurt

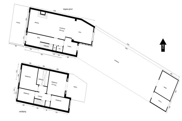
Het adres van deze woning uit 1924 is Gestelsestraat 61 te Eindhoven. Het pand heeft een oppervlakte van 146m² en een perceeloppervlakte van 263m² en heeft 5 kamers kamers waarvan 4 slaapkamers. De geschatte waarde van deze woning is € 430.000.

Bekijk alle woningen in Schrijversbuurt

Gegevens van Eengezinswoning, tussenwoning

Bouwjaar
1924
Geschatte waarde
€ 430.000
Oppervlakte
146 m2
Inhoud
530 m3
Aantal kamers
5 kamers
Slaapkamers
4
Badkamers
1 badkamer en 1 apart toilet
Soort bouw
Bestaande bouw
Eigendomssituatie
Volle eigendom
Ligging
In centrum en in woonwijk
Tuin
Achtertuin en voortuin
Achtertuin
113 m² (18m diep en 6,3m breed)

Voorzieningen in de buurt

Binnenkijken bij Gestelsestraat 61 te Eindhoven

Meer meldingen in deze omgeving

Nieuw bedrijf
December 2025
Edenstraat 112, 5615GB Eindhoven

Nieuw bedrijf
December 2025
Brederolaan 82, 5615KJ Eindhoven

Nieuw bedrijf
December 2025
Hoogstraat 18525, 5615PD Eindhoven

112 melding
Donderdag 4-12-2025 om 23:07
Camphuysenstraat, 5615KS Eindhoven

Nieuw bedrijf
December 2025
Hof van Eden 64, 5615GK Eindhoven

Nieuw bedrijf
December 2025
Hoogstraat 101N, 5615PB Eindhoven

Nieuw bedrijf
December 2025
da Costaweg 3, 5615NA Eindhoven

Binnenkijken bij
Vrijdag 28-11-2025
Gestelsestraat 170B, 5615LK Eindhoven

Direct een e-mail ontvangen bij nieuwe meldingen in deze regio?

Meld je dan GRATIS aan voor de Oozo Alert service voor Schrijversbuurt

Instellen

Meer nieuws in Schrijversbuurt

Weten hoe eenvoudig het is om af te vallen? Zonder pillen en smeersels en zonder je in het zweet te werken!
Kijk op eenvoudig-afvallen.nl

© 2012 - 2025 OOZO.nl - info@oozo.nl - Gegevens verwijderen? | Disclaimer | Privacy statement