Woning Belgiëplein 10 Eindhoven

Belgiëplein 10, 5628XJ Eindhoven

Ontvang updates voor Tempel

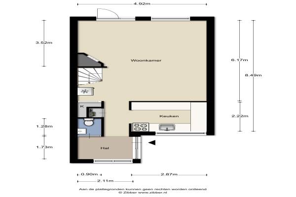
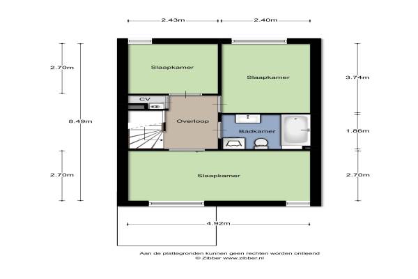
Het adres van deze woning uit 1975 is Belgiëplein 10 te Eindhoven. Het pand heeft een oppervlakte van 88m² en een perceeloppervlakte van 130m² en heeft 4 kamers kamers waarvan 3 slaapkamers. De geschatte waarde van deze woning is € 199.500.

Bekijk alle woningen in Tempel

Gegevens van Eengezinswoning, tussenwoning

Bouwjaar
1975
Geschatte waarde
€ 199.500
Oppervlakte
88 m2
Inhoud
310 m3
Aantal kamers
4 kamers
Slaapkamers
3
Badkamers
1 badkamer en 1 apart toilet
Soort bouw
Bestaande bouw
Eigendomssituatie
Volle eigendom
Ligging
Aan park, aan rustige weg, in woonwijk en vrij uitzicht
Tuin
Achtertuin en voortuin
Achtertuin
47 m² (9m diep en 5,2m breed)

Voorzieningen in de buurt

Binnenkijken bij Belgiëplein 10 te Eindhoven

Meer meldingen in deze omgeving

Nieuw bedrijf
December 2025
Borgerhoutlaan 14, 5628TZ Eindhoven

Nieuw bedrijf
December 2025
Diksmuidepad 2, 5628NK Eindhoven

Nieuw bedrijf
December 2025
Bokrijkstraat 31, 5628ZV Eindhoven

Nieuw bedrijf
December 2025
Bokrijkstraat 31, 5628ZV Eindhoven

Nieuw bedrijf
December 2025
Brasschaatpad 24, 5628TR Eindhoven

Nieuw bedrijf
December 2025
Dammestraat 9, 5628NM Eindhoven

Nieuw bedrijf
December 2025
Luiklaan 5, 5628ZA Eindhoven

112 melding
Zondag 30-11-2025 om 18:12
Bokrijkstraat, Eindhoven

Direct een e-mail ontvangen bij nieuwe meldingen in deze regio?

Meld je dan GRATIS aan voor de Oozo Alert service voor Tempel

Instellen

Meer nieuws in Tempel

Weten hoe eenvoudig het is om af te vallen? Zonder pillen en smeersels en zonder je in het zweet te werken!
Kijk op eenvoudig-afvallen.nl

© 2012 - 2025 OOZO.nl - info@oozo.nl - Gegevens verwijderen? | Disclaimer | Privacy statement