Woning Bernhardstraat 21 Melissant

Bernhardstraat 21, 3248AC Melissant

Ontvang updates voor Melissant woonkern

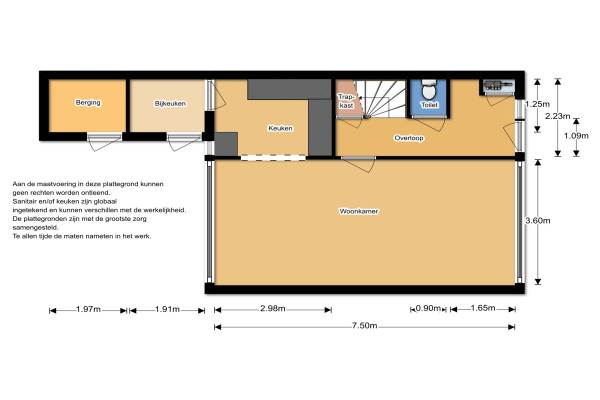
Het adres van deze woning uit 1967 is Bernhardstraat 21 te Melissant. Het pand heeft een oppervlakte van 95m² en een perceeloppervlakte van 148m² en heeft 5 kamers kamers waarvan 4 slaapkamers. De geschatte waarde van deze woning is € 175.000.

Bekijk alle woningen in Melissant woonkern

Gegevens van Eengezinswoning, tussenwoning

Bouwjaar
1967
Geschatte waarde
€ 175.000
Oppervlakte
95 m2
Inhoud
360 m3
Aantal kamers
5 kamers
Slaapkamers
4
Badkamers
1 badkamer en 1 apart toilet
Soort bouw
Bestaande bouw
Eigendomssituatie
Volle eigendom
Ligging
Aan rustige weg, in woonwijk en landelijk gelegen
Tuin
Achtertuin en voortuin
Achtertuin
60 m² (10m diep en 6m breed)

Voorzieningen in de buurt

Boodschappen0,5 km
Grote supermarkt0,5 km
Cafetaria0,5 km
Restaurant4,1 km
Huisarts0,4 km
Ziekenhuis4,1 km
Kinderdagverblijf0,5 km
BSO0,3 km
Alle voorzieningen in Melissant woonkern

Binnenkijken bij Bernhardstraat 21 te Melissant

Meer meldingen in deze omgeving

112 melding
Zondag 7-12-2025 om 04:59
Marijkelaan, 3248AS Melissant

Binnenkijken bij
Zaterdag 6-12-2025
Binnenweg 9, 3248AE Melissant

Nieuw bedrijf
December 2025
Achterweg 30a, 3248AA Melissant

Binnenkijken bij
Donderdag 4-12-2025
Binnenweg 30, 3248AG Melissant

Nieuw bedrijf
December 2025
Binnenweg 3, 3248AE Melissant

112 melding
Woensdag 3-12-2025 om 14:21
Amaliastraat, 3248AV Melissant

112 melding
Woensdag 3-12-2025 om 12:48
Amaliastraat, 3248AV Melissant

112 melding
Maandag 1-12-2025 om 10:14
Pieterstraat, 3248BH Melissant

Direct een e-mail ontvangen bij nieuwe meldingen in deze regio?

Meld je dan GRATIS aan voor de Oozo Alert service voor Melissant woonkern

Instellen

Meer nieuws in Melissant woonkern

Weten hoe eenvoudig het is om af te vallen? Zonder pillen en smeersels en zonder je in het zweet te werken!
Kijk op eenvoudig-afvallen.nl

© 2012 - 2025 OOZO.nl - info@oozo.nl - Gegevens verwijderen? | Disclaimer | Privacy statement