Woning Hermelijnstraat 51 Hengelo

Hermelijnstraat 51, 7559AM Hengelo

Ontvang updates voor Roershoek

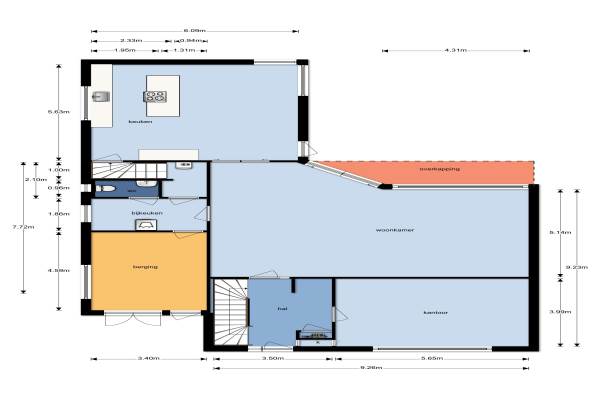
Het adres van deze woning uit 2008 is Hermelijnstraat 51 te Hengelo. Het pand heeft een oppervlakte van 265m² en een perceeloppervlakte van 770m² en heeft 10 kamers kamers waarvan 5 slaapkamers. De geschatte waarde van deze woning is € 649.000.

Bekijk alle woningen in Roershoek

Gegevens van Eengezinswoning, vrijstaande woning

Bouwjaar
2008
Geschatte waarde
€ 649.000
Oppervlakte
265 m2
Inhoud
1122 m3
Aantal kamers
10 kamers
Slaapkamers
5
Badkamers
2 badkamers en 1 apart toilet
Soort bouw
Bestaande bouw
Eigendomssituatie
Volle eigendom
Ligging
Aan rustige weg, in woonwijk en beschutte ligging
Tuin
Achtertuin, voortuin en zijtuin
Achtertuin
480 m² (30m diep en 16m breed)

Voorzieningen in de buurt

Boodschappen1,3 km
Grote supermarkt1,3 km
Cafetaria1,4 km
Restaurant0,8 km
Huisarts1,4 km
Ziekenhuis5,7 km
Kinderdagverblijf0,9 km
BSO0,8 km
Alle voorzieningen in Roershoek

Binnenkijken bij Hermelijnstraat 51 te Hengelo

Meer meldingen in deze omgeving

Binnenkijken bij
Dinsdag 11-11-2025
Levantstraat 39, 7559CG Hengelo (OV)

Nieuw bedrijf
November 2025
Brouwertsweg 4, 7559PD Hengelo

Binnenkijken bij
Woensdag 29-10-2025
Dasstraat 45, 7559AB Hengelo (OV)

Nieuw bedrijf
Oktober 2025
Marterstraat 3, 7559AE Hengelo

112 melding
Donderdag 23-10-2025 om 14:04
Salamanderstraat, Hengelo

112 melding
Donderdag 23-10-2025 om 14:02
Salamanderstraat, Hengelo

Binnenkijken bij
Zaterdag 11-10-2025
Libellestraat 27, 7559BR Hengelo (OV)

Onroerend goed
Donderdag 9-10-2025
Torenlaan 46, 7559PJ Hengelo (OV)

Direct een e-mail ontvangen bij nieuwe meldingen in deze regio?

Meld je dan GRATIS aan voor de Oozo Alert service voor Roershoek

Instellen

Meer nieuws in Roershoek

Weten hoe eenvoudig het is om af te vallen? Zonder pillen en smeersels en zonder je in het zweet te werken!
Kijk op eenvoudig-afvallen.nl

© 2012 - 2025 OOZO.nl - info@oozo.nl - Gegevens verwijderen? | Disclaimer | Privacy statement