Woning Guldenslag 69 Houten

Guldenslag 69, 3991WD Houten

Ontvang updates voor Slagen

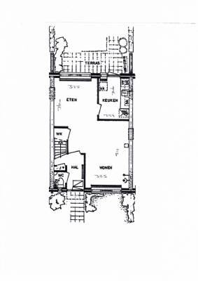
Het adres van deze woning is Guldenslag 69 te Houten. Het pand heeft een oppervlakte van 113m² en een perceeloppervlakte van 168m² en heeft 5 kamers kamers waarvan 4 slaapkamers. De geschatte waarde van deze woning is € 230.000.

Bekijk alle woningen in Slagen

Gegevens van

Geschatte waarde
€ 230.000
Oppervlakte
113 m² woonopp. m2
Aantal kamers
5 kamers

Voorzieningen in de buurt

Boodschappen1,0 km
Grote supermarkt1,0 km
Cafetaria1,2 km
Restaurant1,0 km
Huisarts1,5 km
Ziekenhuis2,5 km
Kinderdagverblijf0,4 km
BSO0,3 km
Alle voorzieningen in Slagen

Binnenkijken bij Guldenslag 69 te Houten

Meer meldingen in deze omgeving

112 melding
Zondag 2-11-2025 om 15:56
Dukaatslag, Houten

112 melding
Zondag 2-11-2025 om 15:39
Nobelslag, Houten

112 melding
Zondag 2-11-2025 om 15:05
Nobelslag, Houten

112 melding
Zondag 2-11-2025 om 15:02
Nobelslag, Houten

112 melding
Zondag 2-11-2025 om 15:02
Nobelslag, Houten

Binnenkijken bij
Woensdag 29-10-2025
Florijnslag 62, 3991WN Houten

Binnenkijken bij
Donderdag 9-10-2025
Penningslag 4, 3991WR Houten

Binnenkijken bij
Donderdag 9-10-2025
Dukaatslag 67, 3991TB Houten

Direct een e-mail ontvangen bij nieuwe meldingen in deze regio?

Meld je dan GRATIS aan voor de Oozo Alert service voor Slagen

Instellen

Meer nieuws in Slagen

Weten hoe eenvoudig het is om af te vallen? Zonder pillen en smeersels en zonder je in het zweet te werken!
Kijk op eenvoudig-afvallen.nl

© 2012 - 2025 OOZO.nl - info@oozo.nl - Gegevens verwijderen? | Disclaimer | Privacy statement