Woning Hoefblad 99 Rijnsburg

Hoefblad 99, 2231WR Rijnsburg

Ontvang updates voor Rijnsburg

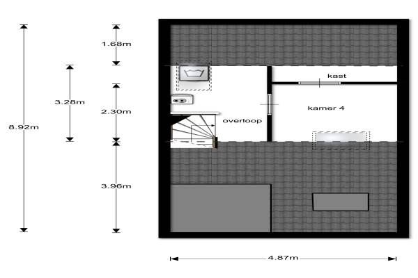
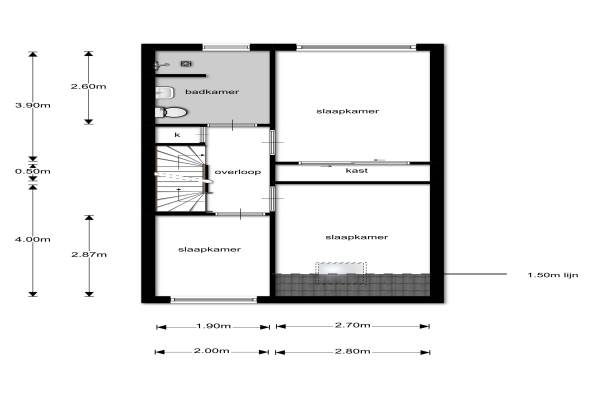
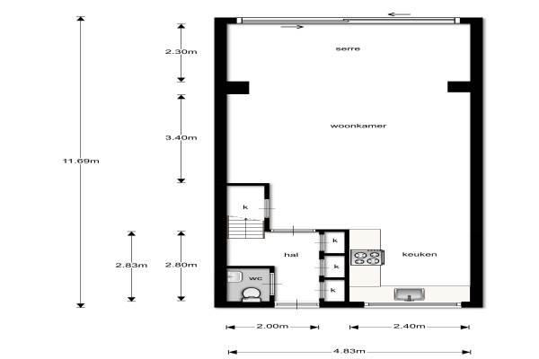
Het adres van deze woning uit 1982 is Hoefblad 99 te Rijnsburg. Het pand heeft een oppervlakte van 115m² en een perceeloppervlakte van 130m² en heeft 5 kamers kamers waarvan 4 slaapkamers. De geschatte waarde van deze woning is € 325.000.

Bekijk alle woningen in Rijnsburg

Gegevens van Eengezinswoning, tussenwoning

Bouwjaar
1982
Geschatte waarde
€ 325.000
Oppervlakte
115 m2
Inhoud
335 m3
Aantal kamers
5 kamers
Slaapkamers
4
Badkamers
1 badkamer en 1 apart toilet
Soort bouw
Bestaande bouw
Eigendomssituatie
Volle eigendom
Ligging
Aan water, aan rustige weg en in woonwijk
Tuin
Achtertuin en voortuin
Achtertuin
44 m² (8m diep en 5,5m breed)

Voorzieningen in de buurt

Boodschappen0,2 km
Grote supermarkt0,3 km
Cafetaria0,2 km
Restaurant0,2 km
Huisarts0,3 km
Ziekenhuis3,7 km
Kinderdagverblijf0,3 km
BSO0,6 km
Alle voorzieningen in Rijnsburg

Binnenkijken bij Hoefblad 99 te Rijnsburg

Meer meldingen in deze omgeving

112 melding
Vrijdag 14-11-2025 om 20:16
Oegstgeesterweg, 2231BG Rijnsburg

112 melding
Vrijdag 14-11-2025 om 20:03
Oegstgeesterweg, 2231BG Rijnsburg

112 melding
Vrijdag 14-11-2025 om 07:26
Merovingenlaan, 2232AN Rijnsburg

Nieuw bedrijf
November 2025
Duizendschoon 35, 2231PV Rijnsburg

Nieuw bedrijf
November 2025
Duizendschoon 35, 2231PV Rijnsburg

Nieuw bedrijf
November 2025
Boterbloem 37, 2231WN Rijnsburg

Nieuw bedrijf
November 2025
Witte de Withstraat 5, 2231RN Rijnsburg

112 melding
Donderdag 13-11-2025 om 23:23
Sandtlaan, 2231CE Rijnsburg

Direct een e-mail ontvangen bij nieuwe meldingen in deze regio?

Meld je dan GRATIS aan voor de Oozo Alert service voor Rijnsburg

Instellen

Meer nieuws in Rijnsburg

Weten hoe eenvoudig het is om af te vallen? Zonder pillen en smeersels en zonder je in het zweet te werken!
Kijk op eenvoudig-afvallen.nl

© 2012 - 2025 OOZO.nl - info@oozo.nl - Gegevens verwijderen? | Disclaimer | Privacy statement