Woning Keizerskroon 110 Leeuwarden

Keizerskroon 110, 8935LZ Leeuwarden

Ontvang updates voor Aldlân-Oost

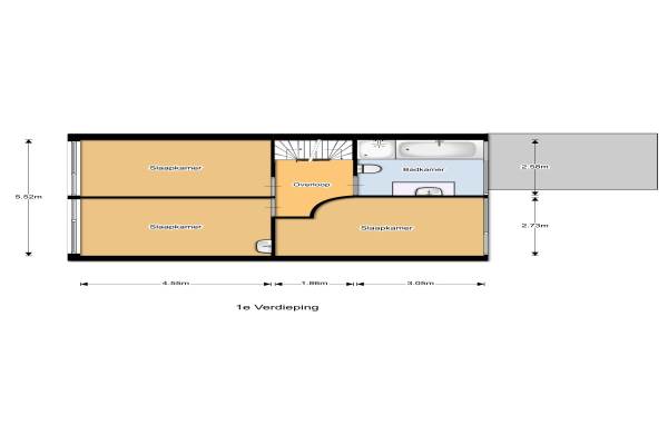
Het adres van deze woning uit 1975 is Keizerskroon 110 te Leeuwarden. Het pand heeft een oppervlakte van 130m² en een perceeloppervlakte van 202m² en heeft 5 kamers kamers waarvan 4 slaapkamers. De geschatte waarde van deze woning is € 150.000.

Bekijk alle woningen in Aldlân-Oost

Gegevens van Eengezinswoning, tussenwoning

Bouwjaar
1975
Geschatte waarde
€ 150.000
Oppervlakte
130 m2
Inhoud
375 m3
Aantal kamers
5 kamers
Slaapkamers
4
Badkamers
1 badkamer en 1 apart toilet
Soort bouw
Bestaande bouw
Eigendomssituatie
Volle eigendom
Ligging
Aan rustige weg en in woonwijk
Tuin
Achtertuin en voortuin
Achtertuin
50 m² (11m diep en 5m breed)

Voorzieningen in de buurt

Binnenkijken bij Keizerskroon 110 te Leeuwarden

Meer meldingen in deze omgeving

Nieuw bedrijf
November 2025
Maagdepalm 12, 8935NC Leeuwarden

Binnenkijken bij
Dinsdag 11-11-2025
Ereprijs 89, 8935JD Leeuwarden

Binnenkijken bij
Dinsdag 11-11-2025
Salomonszegel 98, 8935SH Leeuwarden

Binnenkijken bij
Dinsdag 11-11-2025
Maagdepalm 78, 8935NE Leeuwarden

Binnenkijken bij
Dinsdag 11-11-2025
Maagdepalm 45, 8935NB Leeuwarden

Binnenkijken bij
Dinsdag 11-11-2025
Sleutelbloem 39, 8935RM Leeuwarden

Nieuw bedrijf
Oktober 2025
Zenegroen 132, 8935KN Leeuwarden

Nieuw bedrijf
Oktober 2025
Maagdepalm 98, 8935NG Leeuwarden

Direct een e-mail ontvangen bij nieuwe meldingen in deze regio?

Meld je dan GRATIS aan voor de Oozo Alert service voor Aldlân-Oost

Instellen

Meer nieuws in Aldlân-Oost

Weten hoe eenvoudig het is om af te vallen? Zonder pillen en smeersels en zonder je in het zweet te werken!
Kijk op eenvoudig-afvallen.nl

© 2012 - 2025 OOZO.nl - info@oozo.nl - Gegevens verwijderen? | Disclaimer | Privacy statement