Woning Spankerstraat 5 Lisse

Spankerstraat 5, 2162LT Lisse

Ontvang updates voor Lisse Rond

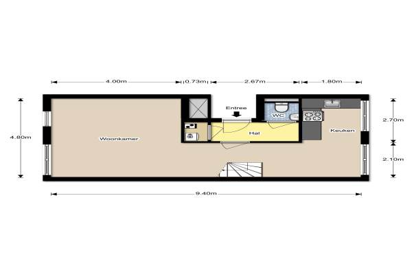
Het adres van deze woning uit 2002 is Spankerstraat 5 te Lisse. Het pand heeft een oppervlakte van 85m² en heeft 3 kamers kamers waarvan 2 slaapkamers. De geschatte waarde van deze woning is € 215.000.

Bekijk alle woningen in Lisse Rond

Gegevens van Maisonnette (appartement)

Bouwjaar
2002
Geschatte waarde
€ 215.000
Oppervlakte
85 m2
Inhoud
279 m3
Aantal kamers
3 kamers
Slaapkamers
2
Badkamers
1 badkamer en 1 apart toilet
Soort bouw
Bestaande bouw
Eigendomssituatie
Volle eigendom
Ligging
In woonwijk

Voorzieningen in de buurt

Binnenkijken bij Spankerstraat 5 te Lisse

Meer meldingen in deze omgeving

Nieuw bedrijf
December 2025
Egbert van 't Oeverstraat 18, 2162LW Lisse

112 melding
Maandag 1-12-2025 om 14:22
Punterhof, 2162LC Lisse

Nieuw bedrijf
November 2025
Randmeerstraat 36, 2162LK Lisse

112 melding
Donderdag 27-11-2025 om 18:04
Klipperdijk, 2162LX Lisse

112 melding
Woensdag 26-11-2025 om 10:53
Klipperdijk, 2162LZ Lisse

112 melding
Dinsdag 25-11-2025 om 14:40
Botterstraat, 2162LA Lisse

Binnenkijken bij
Dinsdag 25-11-2025
Spankerstraat 23, 2162LT Lisse

112 melding
Vrijdag 21-11-2025 om 16:59
Klipperdijk, 2162LX Lisse

Direct een e-mail ontvangen bij nieuwe meldingen in deze regio?

Meld je dan GRATIS aan voor de Oozo Alert service voor Lisse Rond

Instellen

Meer nieuws in Lisse Rond

Weten hoe eenvoudig het is om af te vallen? Zonder pillen en smeersels en zonder je in het zweet te werken!
Kijk op eenvoudig-afvallen.nl

© 2012 - 2025 OOZO.nl - info@oozo.nl - Gegevens verwijderen? | Disclaimer | Privacy statement