Woning Willibrordusstraat 14 Loon op Zand

Willibrordusstraat 14, 5175AL Loon op Zand

Ontvang updates voor Oud-Loon

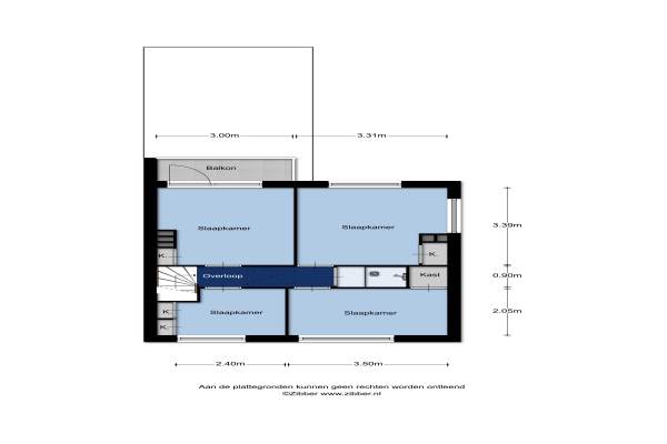
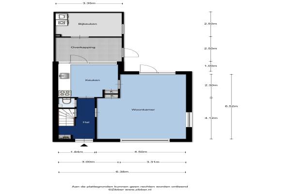
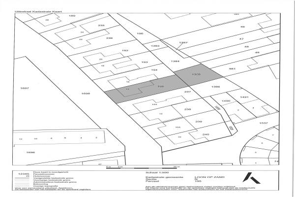
Het adres van deze woning uit 1958 is Willibrordusstraat 14 te Loon op Zand. Het pand heeft een oppervlakte van 103m² en een perceeloppervlakte van 449m² en heeft 6 kamers kamers waarvan 4 slaapkamers. De geschatte waarde van deze woning is € 267.500.

Bekijk alle woningen in Oud-Loon

Gegevens van Eengezinswoning, 2-onder-1-kapwoning

Bouwjaar
1958
Geschatte waarde
€ 267.500
Oppervlakte
103 m2
Inhoud
340 m3
Aantal kamers
6 kamers
Slaapkamers
4
Badkamers
1 badkamer en 1 apart toilet
Soort bouw
Bestaande bouw
Eigendomssituatie
Volle eigendom
Ligging
In woonwijk
Tuin
Achtertuin en voortuin
Achtertuin
165 m² (16,5m diep en 10m breed)

Voorzieningen in de buurt

Boodschappen0,4 km
Grote supermarkt0,5 km
Cafetaria0,4 km
Restaurant0,3 km
Huisarts0,8 km
Ziekenhuis6,6 km
Kinderdagverblijf0,4 km
BSO0,4 km
Alle voorzieningen in Oud-Loon

Binnenkijken bij Willibrordusstraat 14 te Loon op Zand

Meer meldingen in deze omgeving

112 melding
Donderdag 13-11-2025 om 16:24
Gerlachusstraat, 5175AK Loon op Zand

112 melding
Donderdag 13-11-2025 om 16:24
Gerlachusstraat, 5175AK Loon op Zand

112 melding
Donderdag 13-11-2025 om 16:23
Monseigneur Coomansstraat, 5175CW Loon op Zand

112 melding
Donderdag 13-11-2025 om 16:21
Van Rijckevorselstraat, 5175AR Loon op Zand

112 melding
Donderdag 13-11-2025 om 14:14
van Rijckevorselstraat, Loon op Zand

112 melding
Donderdag 13-11-2025 om 11:18
van Rijckevorselstraat, Loon op Zand

112 melding
Woensdag 12-11-2025 om 07:47
Willibrordusstraat, 5175AL Loon op Zand

Binnenkijken bij
Dinsdag 11-11-2025
Maarten van Leeuwenstraat 3, 5175EW Loon op Zand

Direct een e-mail ontvangen bij nieuwe meldingen in deze regio?

Meld je dan GRATIS aan voor de Oozo Alert service voor Oud-Loon

Instellen

Meer nieuws in Oud-Loon

Weten hoe eenvoudig het is om af te vallen? Zonder pillen en smeersels en zonder je in het zweet te werken!
Kijk op eenvoudig-afvallen.nl

© 2012 - 2025 OOZO.nl - info@oozo.nl - Gegevens verwijderen? | Disclaimer | Privacy statement