Woning Langehof 46 Ammerzoden

Langehof 46, 5324EN Ammerzoden

Ontvang updates voor Ammerzoden

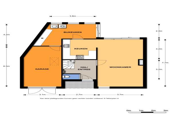
Het adres van deze woning uit 1979 is Langehof 46 te Ammerzoden. Het pand heeft een oppervlakte van 112m² en een perceeloppervlakte van 223m² en heeft 6 kamers kamers waarvan 5 slaapkamers. De geschatte waarde van deze woning is € 289.500.

Bekijk alle woningen in Ammerzoden

Gegevens van Eengezinswoning, hoekwoning

Bouwjaar
1979
Geschatte waarde
€ 289.500
Oppervlakte
112 m2
Inhoud
495 m3
Aantal kamers
6 kamers
Slaapkamers
5
Badkamers
1 badkamer en 1 apart toilet
Soort bouw
Bestaande bouw
Eigendomssituatie
Volle eigendom
Ligging
Aan rustige weg, in woonwijk en open ligging
Tuin
Achtertuin en voortuin
Achtertuin
75 m² (10m diep en 7,5m breed)

Voorzieningen in de buurt

Boodschappen0,5 km
Grote supermarkt0,8 km
Cafetaria0,5 km
Restaurant0,5 km
Huisarts0,5 km
Ziekenhuis9,2 km
Kinderdagverblijf0,5 km
BSO0,5 km
Alle voorzieningen in Ammerzoden

Binnenkijken bij Langehof 46 te Ammerzoden

Meer meldingen in deze omgeving

Binnenkijken bij
Zaterdag 6-12-2025
Van Arkellaan 23, 5324CX Ammerzoden

Nieuw bedrijf
December 2025
Onderwaard 2, 5324JV Ammerzoden

Nieuw bedrijf
December 2025
Onderwaard 2, 5324JV Ammerzoden

Nieuw bedrijf
December 2025
Onderwaard 2, 5324JV Ammerzoden

Binnenkijken bij
Dinsdag 2-12-2025
Burg Herckenrathlaan 22, 5324EC Ammerzoden

Nieuw bedrijf
December 2025
Hogesteeg 76, 5324AE Ammerzoden

112 melding
Zondag 30-11-2025 om 22:03
Secr Schokkerstraat, Ammerzoden

Binnenkijken bij
Dinsdag 25-11-2025
Reeuwijkstraat 2, 5324CJ Ammerzoden

Direct een e-mail ontvangen bij nieuwe meldingen in deze regio?

Meld je dan GRATIS aan voor de Oozo Alert service voor Ammerzoden

Instellen

Meer nieuws in Ammerzoden

Weten hoe eenvoudig het is om af te vallen? Zonder pillen en smeersels en zonder je in het zweet te werken!
Kijk op eenvoudig-afvallen.nl

© 2012 - 2025 OOZO.nl - info@oozo.nl - Gegevens verwijderen? | Disclaimer | Privacy statement