Woning Laan ter Catten 52 Nuenen

Laan ter Catten 52, 5673BC Nuenen

Ontvang updates voor Nuenen-Oost

Het adres van deze woning uit 1992 is Laan ter Catten 52 te Nuenen. Het pand heeft een oppervlakte van 177m² en een perceeloppervlakte van 159m² en heeft 7 kamers kamers waarvan 5 slaapkamers. De geschatte waarde van deze woning is € 325.000.

Bekijk alle woningen in Nuenen-Oost

Gegevens van Eengezinswoning, hoekwoning

Bouwjaar
1992
Geschatte waarde
€ 325.000
Oppervlakte
177 m2
Inhoud
540 m3
Aantal kamers
7 kamers
Slaapkamers
5
Badkamers
1 badkamer en 1 apart toilet
Soort bouw
Bestaande bouw
Eigendomssituatie
Volle eigendom
Ligging
In woonwijk
Tuin
Achtertuin en voortuin
Achtertuin
65 m² (10m diep en 6,5m breed)

Voorzieningen in de buurt

Boodschappen1,4 km
Grote supermarkt1,3 km
Cafetaria0,7 km
Restaurant1,1 km
Huisarts0,5 km
Ziekenhuis6,5 km
Kinderdagverblijf0,8 km
BSO0,8 km
Alle voorzieningen in Nuenen-Oost

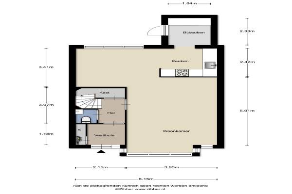
Binnenkijken bij Laan ter Catten 52 te Nuenen

Meer meldingen in deze omgeving

112 melding
Vrijdag 28-11-2025 om 12:05
Cantersakker, 5673PL Nuenen

112 melding
Vrijdag 28-11-2025 om 12:01
Cantersakker, 5673PL Nuenen

Nieuw bedrijf
November 2025
Vrouwe Cecilialaan 19, 5673MZ Nuenen

Nieuw bedrijf
November 2025
Boschhoeve 5, 5673KB Nuenen

Binnenkijken bij
Woensdag 26-11-2025
Vogelsgaarde 12, 5673AK Nuenen

Binnenkijken bij
Dinsdag 25-11-2025
Lobroec 16, 5673BA Nuenen

Nieuw bedrijf
November 2025
Kremersbos 5, 5673TA Nuenen

Binnenkijken bij
Vrijdag 14-11-2025
Juffr Tempelmanlaan 18, 5673AD Nuenen

Direct een e-mail ontvangen bij nieuwe meldingen in deze regio?

Meld je dan GRATIS aan voor de Oozo Alert service voor Nuenen-Oost

Instellen

Meer nieuws in Nuenen-Oost

Weten hoe eenvoudig het is om af te vallen? Zonder pillen en smeersels en zonder je in het zweet te werken!
Kijk op eenvoudig-afvallen.nl

© 2012 - 2025 OOZO.nl - info@oozo.nl - Gegevens verwijderen? | Disclaimer | Privacy statement