Woning Hofvijver 104 Oss

Hofvijver 104, 5346KD Oss

Ontvang updates voor De Noord

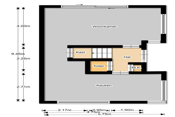
Het adres van deze woning uit 2000 is Hofvijver 104 te Oss. Het pand heeft een oppervlakte van 125m² en een perceeloppervlakte van 157m² en heeft 5 kamers kamers waarvan 4 slaapkamers. De geschatte waarde van deze woning is € 242.000.

Bekijk alle woningen in De Noord

Gegevens van Eengezinswoning, hoekwoning

Bouwjaar
2000
Geschatte waarde
€ 242.000
Oppervlakte
125 m2
Inhoud
390 m3
Aantal kamers
5 kamers
Slaapkamers
4
Badkamers
1 badkamer en 1 apart toilet
Soort bouw
Bestaande bouw
Eigendomssituatie
Volle eigendom
Ligging
In woonwijk
Tuin
Achtertuin
Achtertuin
84 m² (14m diep en 6m breed)

Voorzieningen in de buurt

Boodschappen1,4 km
Grote supermarkt1,5 km
Cafetaria1,3 km
Restaurant1,5 km
Huisarts2,2 km
Ziekenhuis3,8 km
Kinderdagverblijf0,8 km
BSO0,7 km
Alle voorzieningen in De Noord

Binnenkijken bij Hofvijver 104 te Oss

Meer meldingen in deze omgeving

Nieuw bedrijf
December 2025
Oijenseweg 138, 5346JG Oss

Nieuw bedrijf
December 2025
Oijenseweg 174, 5346JG Oss

Nieuw bedrijf
December 2025
Kamprechter 10, 5346WB Oss

Binnenkijken bij
Woensdag 3-12-2025
Hofvijver 41, 5346KB Oss

112 melding
Zondag 30-11-2025 om 14:28
Schildwacht, Oss

Nieuw bedrijf
November 2025
Oijenseweg 190, 5346JG Oss

Binnenkijken bij
Vrijdag 14-11-2025
Musketier 8, 5346WH Oss

112 melding
Maandag 10-11-2025 om 16:00
Mettegeupelstraat, 5346JG Oss

Direct een e-mail ontvangen bij nieuwe meldingen in deze regio?

Meld je dan GRATIS aan voor de Oozo Alert service voor De Noord

Instellen

Meer nieuws in De Noord

Weten hoe eenvoudig het is om af te vallen? Zonder pillen en smeersels en zonder je in het zweet te werken!
Kijk op eenvoudig-afvallen.nl

© 2012 - 2025 OOZO.nl - info@oozo.nl - Gegevens verwijderen? | Disclaimer | Privacy statement