Woning Nieuwstraat 8 Raalte

Nieuwstraat 8, 8102EJ Raalte

Ontvang updates voor Raalte Centrum

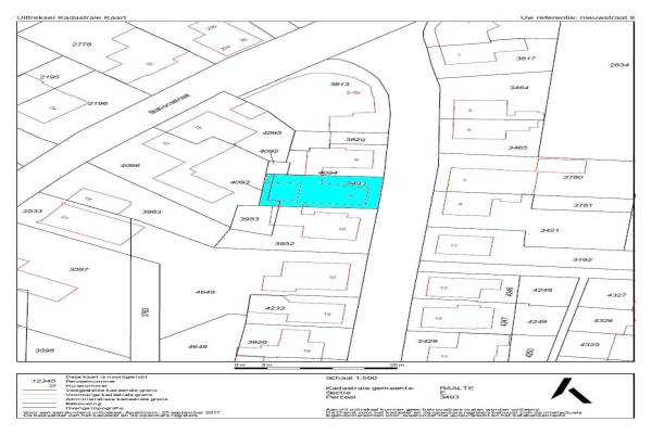
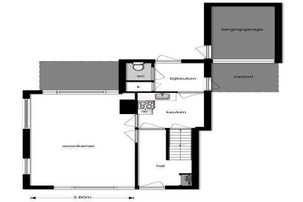
Het adres van deze woning uit 1937 is Nieuwstraat 8 te Raalte. Het pand heeft een oppervlakte van 85m² en een perceeloppervlakte van 196m² en heeft 5 kamers kamers waarvan 3 slaapkamers. De geschatte waarde van deze woning is € 225.000.

Bekijk alle woningen in Raalte Centrum

Gegevens van Eengezinswoning, vrijstaande woning

Bouwjaar
1937
Geschatte waarde
€ 225.000
Oppervlakte
85 m2
Inhoud
340 m3
Aantal kamers
5 kamers
Slaapkamers
3
Badkamers
1 badkamer en 1 apart toilet
Soort bouw
Bestaande bouw
Eigendomssituatie
Volle eigendom
Tuin
Achtertuin en voortuin
Achtertuin
45 m² (6m diep en 7,5m breed)

Voorzieningen in de buurt

Boodschappen0,2 km
Grote supermarkt0,3 km
Cafetaria0,2 km
Restaurant0,2 km
Huisarts0,6 km
Ziekenhuis2,3 km
Kinderdagverblijf0,7 km
BSO0,7 km
Alle voorzieningen in Raalte Centrum

Binnenkijken bij Nieuwstraat 8 te Raalte

Meer meldingen in deze omgeving

Binnenkijken bij
Vrijdag 5-12-2025
de Beukenhof 34, 8102GR Raalte

Nieuw bedrijf
December 2025
Grotestraat 1, 8102CD Raalte

Binnenkijken bij
Donderdag 4-12-2025
Brugstraat 23, 8102EP Raalte

Binnenkijken bij
Dinsdag 25-11-2025
Stationsstraat 11, 8102EB Raalte

112 melding
Maandag 24-11-2025 om 07:59
Kuiperstraat, 8102CX Raalte

Binnenkijken bij
Vrijdag 21-11-2025
Herenhof 12, 8102CT Raalte

Nieuw bedrijf
November 2025
Mettingenlaan 8, 8102ER Raalte

112 melding
Vrijdag 14-11-2025 om 13:01
Mettingenlaan, Raalte

Direct een e-mail ontvangen bij nieuwe meldingen in deze regio?

Meld je dan GRATIS aan voor de Oozo Alert service voor Raalte Centrum

Instellen

Meer nieuws in Raalte Centrum

Weten hoe eenvoudig het is om af te vallen? Zonder pillen en smeersels en zonder je in het zweet te werken!
Kijk op eenvoudig-afvallen.nl

© 2012 - 2025 OOZO.nl - info@oozo.nl - Gegevens verwijderen? | Disclaimer | Privacy statement