Woning Paulus Potterstraat 33 Rijssen

Paulus Potterstraat 33, 7462BC Rijssen

Ontvang updates voor De Delle

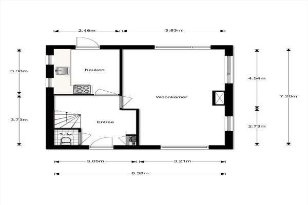
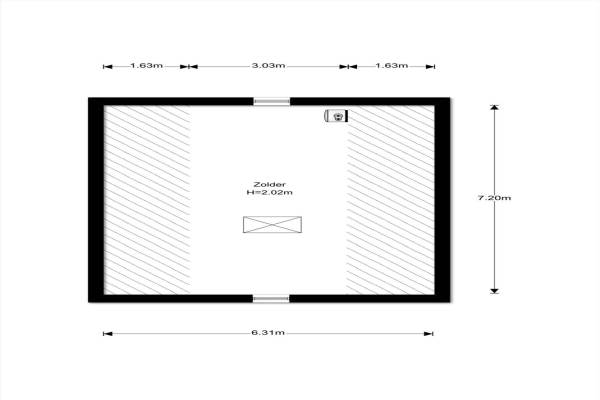
Het adres van deze woning uit 1966 is Paulus Potterstraat 33 te Rijssen. Het pand heeft een oppervlakte van 92m² en een perceeloppervlakte van 377m² en heeft 5 kamers kamers waarvan 3 slaapkamers. De geschatte waarde van deze woning is € 247.000.

Bekijk alle woningen in De Delle

Gegevens van Eengezinswoning, vrijstaande woning

Bouwjaar
1966
Geschatte waarde
€ 247.000
Oppervlakte
92 m2
Inhoud
422 m3
Aantal kamers
5 kamers
Slaapkamers
3
Soort bouw
Bestaande bouw
Eigendomssituatie
Volle eigendom
Tuin
Achtertuin en voortuin
Achtertuin
188 m² (15m diep en 12,5m breed)

Voorzieningen in de buurt

Boodschappen0,4 km
Grote supermarkt0,4 km
Cafetaria0,6 km
Restaurant0,7 km
Huisarts0,5 km
Ziekenhuis0,6 km
Kinderdagverblijf0,4 km
BSO0,4 km
Alle voorzieningen in De Delle

Binnenkijken bij Paulus Potterstraat 33 te Rijssen

Meer meldingen in deze omgeving

Nieuw bedrijf
November 2025
Banisweg 31, 7462HX Rijssen

112 melding
Dinsdag 4-11-2025 om 15:31
Welleweg, Rijssen

112 melding
Dinsdag 4-11-2025 om 15:31
Welleweg, Rijssen

112 melding
Dinsdag 4-11-2025 om 15:31
Welleweg, Rijssen

Nieuw bedrijf
Oktober 2025
Nicolaas Maesstraat 10, 7462BT Rijssen

Binnenkijken bij
Woensdag 29-10-2025
Prins Bernhardstraat 4, 7462GT Rijssen

Binnenkijken bij
Zondag 19-10-2025
Koninginneweg 6, 7462HM Rijssen

Binnenkijken bij
Zondag 19-10-2025
Graaf Willem Lodewijkstraat 26, 7462EX Rijssen

Direct een e-mail ontvangen bij nieuwe meldingen in deze regio?

Meld je dan GRATIS aan voor de Oozo Alert service voor De Delle

Instellen

Meer nieuws in De Delle

Weten hoe eenvoudig het is om af te vallen? Zonder pillen en smeersels en zonder je in het zweet te werken!
Kijk op eenvoudig-afvallen.nl

© 2012 - 2025 OOZO.nl - info@oozo.nl - Gegevens verwijderen? | Disclaimer | Privacy statement