Woning Gijsingstraat 72B Rotterdam

Gijsingstraat 72B, 3026RP Rotterdam

Ontvang updates voor Tussendijken

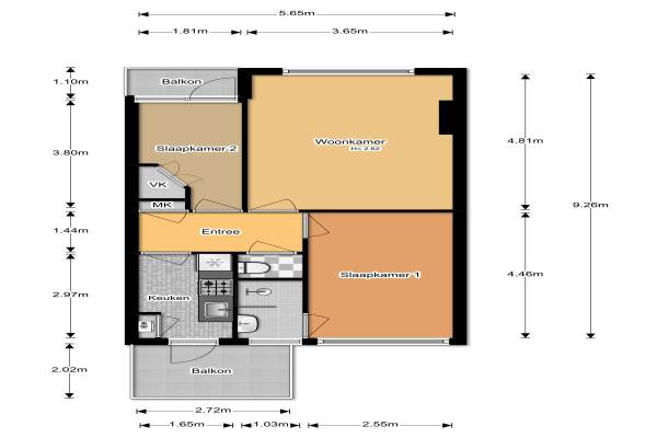
Het adres van deze woning uit 1927 is Gijsingstraat 72B te Rotterdam. Het pand heeft een oppervlakte van 52m² en heeft 3 kamers kamers waarvan 2 slaapkamers. De geschatte waarde van deze woning is € 119.500.

Bekijk alle woningen in Tussendijken

Gegevens van Portiekflat (appartement)

Bouwjaar
1927
Geschatte waarde
€ 119.500
Oppervlakte
52 m2
Inhoud
136 m3
Aantal kamers
3 kamers
Slaapkamers
2
Soort bouw
Bestaande bouw
Eigendomssituatie
Volle eigendom

Voorzieningen in de buurt

Boodschappen0,1 km
Grote supermarkt0,4 km
Cafetaria0,1 km
Restaurant0,2 km
Huisarts0,3 km
Ziekenhuis2,2 km
Kinderdagverblijf0,2 km
BSO0,2 km
Alle voorzieningen in Tussendijken

Binnenkijken bij Gijsingstraat 72B te Rotterdam

Meer meldingen in deze omgeving

112 melding
Woensdag 12-11-2025 om 03:20
Rösener Manzstraat, Rotterdam

112 melding
Dinsdag 11-11-2025 om 22:48
Gijsinglaan, 3026BD Rotterdam

112 melding
Dinsdag 11-11-2025 om 22:45
Gijsinglaan, 3026BD Rotterdam

112 melding
Dinsdag 11-11-2025 om 13:19
Gijsinglaan, 3026BD Rotterdam

Binnenkijken bij
Dinsdag 11-11-2025
Schiedamseweg 179B, 3026AL Rotterdam

Binnenkijken bij
Dinsdag 11-11-2025
Mathenesserdijk 280A02, 3026GN Rotterdam

Binnenkijken bij
Dinsdag 11-11-2025
Korfmakersstraat 95C, 3026XE Rotterdam

Binnenkijken bij
Dinsdag 11-11-2025
Mathenesserweg 120A01, 3026HJ Rotterdam

Direct een e-mail ontvangen bij nieuwe meldingen in deze regio?

Meld je dan GRATIS aan voor de Oozo Alert service voor Tussendijken

Instellen

Meer nieuws in Tussendijken

Weten hoe eenvoudig het is om af te vallen? Zonder pillen en smeersels en zonder je in het zweet te werken!
Kijk op eenvoudig-afvallen.nl

© 2012 - 2025 OOZO.nl - info@oozo.nl - Gegevens verwijderen? | Disclaimer | Privacy statement