Woning Livingstonelaan 674 Utrecht

Livingstonelaan 674, 3526JG Utrecht

Ontvang updates voor Kanaleneiland-Zuid

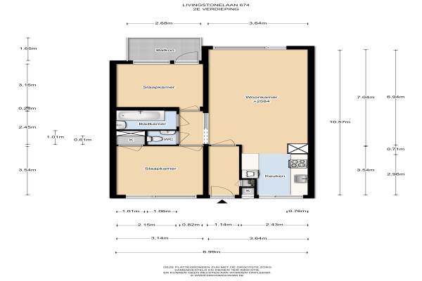
Het adres van deze woning uit 1964 is Livingstonelaan 674 te Utrecht. Het pand heeft een oppervlakte van 70m² en heeft 3 kamers kamers waarvan 2 slaapkamers. De geschatte waarde van deze woning is € 150.000.

Bekijk alle woningen in Kanaleneiland-Zuid

Gegevens van Galerijflat (appartement)

Bouwjaar
1964
Geschatte waarde
€ 150.000
Oppervlakte
70 m2
Inhoud
217 m3
Aantal kamers
3 kamers
Slaapkamers
2
Badkamers
1 badkamer en 1 apart toilet
Soort bouw
Bestaande bouw
Eigendomssituatie
Volle eigendom
Ligging
In woonwijk en vrij uitzicht

Voorzieningen in de buurt

Boodschappen0,3 km
Grote supermarkt0,3 km
Cafetaria0,3 km
Restaurant0,5 km
Huisarts0,5 km
Ziekenhuis4,1 km
Kinderdagverblijf0,3 km
BSO0,6 km
Alle voorzieningen in Kanaleneiland-Zuid

Binnenkijken bij Livingstonelaan 674 te Utrecht

Meer meldingen in deze omgeving

Binnenkijken bij
Zaterdag 6-12-2025
Livingstonelaan 246, 3526HV Utrecht

Nieuw bedrijf
December 2025
Livingstonelaan 1150, 3526JS Utrecht

Nieuw bedrijf
December 2025
Livingstonelaan 85, 3526HB Utrecht

Binnenkijken bij
Donderdag 4-12-2025
Livingstonelaan 608, 3526JE Utrecht

Nieuw bedrijf
December 2025
Aziëlaan 372, 3526SL Utrecht

Nieuw bedrijf
December 2025
Aziëlaan 372, 3526SL Utrecht

Nieuw bedrijf
December 2025
Livingstonelaan 7, 3526HA Utrecht

Nieuw bedrijf
December 2025
Aziëlaan 136, 3526SG Utrecht

Direct een e-mail ontvangen bij nieuwe meldingen in deze regio?

Meld je dan GRATIS aan voor de Oozo Alert service voor Kanaleneiland-Zuid

Instellen

Meer nieuws in Kanaleneiland-Zuid

Weten hoe eenvoudig het is om af te vallen? Zonder pillen en smeersels en zonder je in het zweet te werken!
Kijk op eenvoudig-afvallen.nl

© 2012 - 2025 OOZO.nl - info@oozo.nl - Gegevens verwijderen? | Disclaimer | Privacy statement