Woning Rochusstraat 22 Venray

Rochusstraat 22, 5801RR Venray

Ontvang updates voor Veltum 1

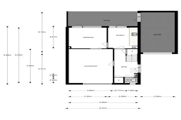
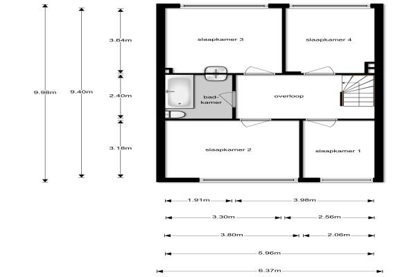
Het adres van deze woning uit 1971 is Rochusstraat 22 te Venray. Het pand heeft een oppervlakte van 112m² en een perceeloppervlakte van 255m² en heeft 5 kamers kamers waarvan 4 slaapkamers. De geschatte waarde van deze woning is € 179.000.

Bekijk alle woningen in Veltum 1

Gegevens van Eengezinswoning, 2-onder-1-kapwoning

Bouwjaar
1971
Geschatte waarde
€ 179.000
Oppervlakte
112 m2
Inhoud
340 m3
Aantal kamers
5 kamers
Slaapkamers
4
Badkamers
1 badkamer en 1 apart toilet
Soort bouw
Bestaande bouw
Eigendomssituatie
Volle eigendom
Ligging
Aan rustige weg, in woonwijk en in bosrijke omgeving
Tuin
Achtertuin en voortuin
Achtertuin
100 m² (10m diep en 10m breed)

Voorzieningen in de buurt

Boodschappen0,5 km
Grote supermarkt0,3 km
Cafetaria0,5 km
Restaurant0,7 km
Huisarts0,6 km
Ziekenhuis1,5 km
Kinderdagverblijf0,5 km
BSO0,4 km
Alle voorzieningen in Veltum 1

Binnenkijken bij Rochusstraat 22 te Venray

Meer meldingen in deze omgeving

Binnenkijken bij
Vrijdag 28-11-2025
Langstraat 166, 5801AG Venray

Nieuw bedrijf
November 2025
Engelenstraat 5, 5801RS Venray

Binnenkijken bij
Dinsdag 25-11-2025
Gratenstraat 19, 5801RX Venray

Binnenkijken bij
Dinsdag 25-11-2025
Vollenbergstraat 10, 5801RP Venray

Nieuw bedrijf
November 2025
Haammakerstraat 24, 5801TB Venray

Binnenkijken bij
Woensdag 29-10-2025
Langstraat 162, 5801AG Venray

Nieuw bedrijf
Oktober 2025
Haammakerstraat 16, 5801TB Venray

Nieuw bedrijf
Oktober 2025
Goudsmidstraat 10, 5801RG Venray

Direct een e-mail ontvangen bij nieuwe meldingen in deze regio?

Meld je dan GRATIS aan voor de Oozo Alert service voor Veltum 1

Instellen

Meer nieuws in Veltum 1

Weten hoe eenvoudig het is om af te vallen? Zonder pillen en smeersels en zonder je in het zweet te werken!
Kijk op eenvoudig-afvallen.nl

© 2012 - 2025 OOZO.nl - info@oozo.nl - Gegevens verwijderen? | Disclaimer | Privacy statement