Woning Hondsdrafstraat 3 Vught

Hondsdrafstraat 3, 5262DH Vught

Ontvang updates voor De Vughtse Hoeven

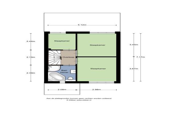
Het adres van deze woning uit 1993 is Hondsdrafstraat 3 te Vught. Het pand heeft een oppervlakte van 112m² en een perceeloppervlakte van 143m² en heeft 5 kamers kamers waarvan 5 slaapkamers. De geschatte waarde van deze woning is € 289.500.

Bekijk alle woningen in De Vughtse Hoeven

Gegevens van Eengezinswoning, tussenwoning

Bouwjaar
1993
Geschatte waarde
€ 289.500
Oppervlakte
112 m2
Inhoud
384 m3
Aantal kamers
5 kamers
Slaapkamers
5
Badkamers
1 badkamer en 1 apart toilet
Soort bouw
Bestaande bouw
Eigendomssituatie
Volle eigendom
Ligging
In woonwijk
Tuin
Achtertuin en voortuin
Achtertuin
50 m² (10m diep en 5m breed)

Voorzieningen in de buurt

Boodschappen1,1 km
Grote supermarkt0,9 km
Cafetaria0,9 km
Restaurant1,0 km
Huisarts0,9 km
Ziekenhuis6,6 km
Kinderdagverblijf0,8 km
BSO0,8 km
Alle voorzieningen in De Vughtse Hoeven

Binnenkijken bij Hondsdrafstraat 3 te Vught

Meer meldingen in deze omgeving

Nieuw bedrijf
November 2025
Scheerlingstraat 9, 5262DR Vught

Nieuw bedrijf
November 2025
Klaproosstraat 30, 5262DP Vught

Nieuw bedrijf
November 2025
Mastdammenhoeve 61, 5262NA Vught

Nieuw bedrijf
November 2025
Veldhoeve 32, 5262NP Vught

Binnenkijken bij
Vrijdag 21-11-2025
Reigersbekstraat 28, 5262DC Vught

112 melding
Woensdag 19-11-2025 om 22:14
Mastdammenhoeve, 5262NA Vught

112 melding
Woensdag 19-11-2025 om 22:14
Mastdammenhoeve, 5262NA Vught

Binnenkijken bij
Vrijdag 14-11-2025
Boterbloemstraat 3, 5262DX Vught

Direct een e-mail ontvangen bij nieuwe meldingen in deze regio?

Meld je dan GRATIS aan voor de Oozo Alert service voor De Vughtse Hoeven

Instellen

Meer nieuws in De Vughtse Hoeven

Weten hoe eenvoudig het is om af te vallen? Zonder pillen en smeersels en zonder je in het zweet te werken!
Kijk op eenvoudig-afvallen.nl

© 2012 - 2025 OOZO.nl - info@oozo.nl - Gegevens verwijderen? | Disclaimer | Privacy statement