Woning Rijksstraatweg 236 Wassenaar

Rijksstraatweg 236, 2241BX Wassenaar

Ontvang updates voor Groot Deijleroord en Ter Weer

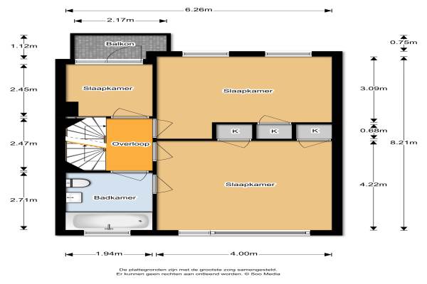
Het adres van deze woning uit 1958 is Rijksstraatweg 236 te Wassenaar. Het pand heeft een oppervlakte van 161m² en een perceeloppervlakte van 222m² en heeft 7 kamers kamers waarvan 5 slaapkamers. De geschatte waarde van deze woning is € 395.000.

Bekijk alle woningen in Groot Deijleroord en Ter Weer

Gegevens van Herenhuis, tussenwoning

Bouwjaar
1958
Geschatte waarde
€ 395.000
Oppervlakte
161 m2
Inhoud
550 m3
Aantal kamers
7 kamers
Slaapkamers
5
Badkamers
1 apart toilet
Soort bouw
Bestaande bouw
Eigendomssituatie
Volle eigendom
Ligging
In woonwijk en vrij uitzicht
Tuin
Achtertuin en voortuin
Achtertuin
96 m² (16m diep en 6m breed)

Voorzieningen in de buurt

Boodschappen1,0 km
Grote supermarkt0,9 km
Cafetaria0,9 km
Restaurant0,8 km
Huisarts0,7 km
Ziekenhuis1,3 km
Kinderdagverblijf0,4 km
BSO0,4 km
Alle voorzieningen in Groot Deijleroord en Ter Weer

Binnenkijken bij Rijksstraatweg 236 te Wassenaar

Meer meldingen in deze omgeving

Binnenkijken bij
Dinsdag 2-12-2025
Dahliahof 16, 2241AX Wassenaar

Binnenkijken bij
Dinsdag 2-12-2025
Twickelstraat 19, 2241XE Wassenaar

Nieuw bedrijf
December 2025
Van der Wervestraat 14, 2241TN Wassenaar

Nieuw bedrijf
December 2025
Seringenlaan 40, 2241VJ Wassenaar

Nieuw bedrijf
December 2025
Narcislaan 9, 2241VP Wassenaar

112 melding
Zaterdag 29-11-2025 om 09:35
Burmanlaan, Wassenaar

Binnenkijken bij
Zaterdag 29-11-2025
Van Cranenburchlaan 3, 2241PJ Wassenaar

112 melding
Vrijdag 28-11-2025 om 13:44
Anemonenweg, Wassenaar

Direct een e-mail ontvangen bij nieuwe meldingen in deze regio?

Meld je dan GRATIS aan voor de Oozo Alert service voor Groot Deijleroord en Ter Weer

Instellen

Meer nieuws in Groot Deijleroord en Ter Weer

Weten hoe eenvoudig het is om af te vallen? Zonder pillen en smeersels en zonder je in het zweet te werken!
Kijk op eenvoudig-afvallen.nl

© 2012 - 2025 OOZO.nl - info@oozo.nl - Gegevens verwijderen? | Disclaimer | Privacy statement