Woning Kostverlorenstraat 92D Zandvoort

Kostverlorenstraat 92D, 2042PK Zandvoort

Ontvang updates voor Kostverloren e.o.

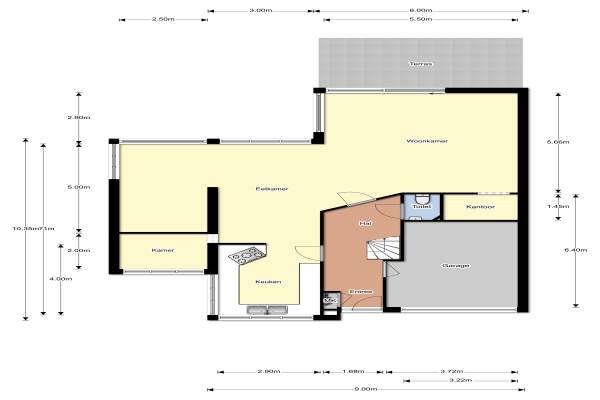
Het adres van deze woning uit 1996 is Kostverlorenstraat 92D te Zandvoort. Het pand heeft een oppervlakte van 187m² en een perceeloppervlakte van 538m² en heeft 4 kamers kamers waarvan 3 slaapkamers. De geschatte waarde van deze woning is € 800.000.

Bekijk alle woningen in Kostverloren e.o.

Gegevens van Herenhuis, 2-onder-1-kapwoning

Bouwjaar
1996
Geschatte waarde
€ 800.000
Oppervlakte
187 m2
Inhoud
650 m3
Aantal kamers
4 kamers
Slaapkamers
3
Badkamers
1 badkamer en 1 apart toilet
Soort bouw
Bestaande bouw
Eigendomssituatie
Volle eigendom
Tuin
Achtertuin, voortuin, zijtuin en zonneterras
Achtertuin
176 m² (13,5m diep en 13m breed)

Voorzieningen in de buurt

Boodschappen0,6 km
Grote supermarkt0,7 km
Cafetaria0,5 km
Restaurant0,6 km
Huisarts0,3 km
Ziekenhuis7,3 km
Kinderdagverblijf0,5 km
BSO0,5 km
Alle voorzieningen in Kostverloren e.o.

Binnenkijken bij Kostverlorenstraat 92D te Zandvoort

Meer meldingen in deze omgeving

Binnenkijken bij
Dinsdag 2-12-2025
Haarlemmerstraat 13D, 2042NA Zandvoort

112 melding
Zondag 30-11-2025 om 16:42
Max Euwestraat, Zandvoort

Binnenkijken bij
Woensdag 26-11-2025
Kostverlorenstraat 7, 2042PA Zandvoort

112 melding
Vrijdag 21-11-2025 om 12:32
Burgemeester Nawijnlaan, Zandvoort

112 melding
Vrijdag 21-11-2025 om 12:28
Burgemeester Nawijnlaan, Zandvoort

112 melding
Vrijdag 14-11-2025 om 08:27
Sophiaweg, Zandvoort

112 melding
Maandag 10-11-2025 om 08:27
Beatrixplantsoen, 2042PW Zandvoort

112 melding
Vrijdag 7-11-2025 om 15:42
Sophiaweg, Zandvoort

Direct een e-mail ontvangen bij nieuwe meldingen in deze regio?

Meld je dan GRATIS aan voor de Oozo Alert service voor Kostverloren e.o.

Instellen

Meer nieuws in Kostverloren e.o.

Weten hoe eenvoudig het is om af te vallen? Zonder pillen en smeersels en zonder je in het zweet te werken!
Kijk op eenvoudig-afvallen.nl

© 2012 - 2025 OOZO.nl - info@oozo.nl - Gegevens verwijderen? | Disclaimer | Privacy statement