Woning Nieuwlandstraat 142 Zoetermeer

Nieuwlandstraat 142, 2729DX Zoetermeer

Ontvang updates voor Oosterheem-Noord-Oost

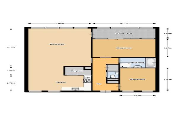
Het adres van deze woning uit 2003 is Nieuwlandstraat 142 te Zoetermeer. Het pand heeft een oppervlakte van 110m² en heeft 3 kamers kamers waarvan 2 slaapkamers. De geschatte waarde van deze woning is € 234.000.

Bekijk alle woningen in Oosterheem-Noord-Oost

Gegevens van Portiekflat (appartement)

Bouwjaar
2003
Geschatte waarde
€ 234.000
Oppervlakte
110 m2
Inhoud
320 m3
Aantal kamers
3 kamers
Slaapkamers
2
Badkamers
1 badkamer en 1 apart toilet
Soort bouw
Bestaande bouw
Eigendomssituatie
Volle eigendom
Ligging
Aan rustige weg, in woonwijk en vrij uitzicht

Voorzieningen in de buurt

Boodschappen0,9 km
Grote supermarkt1,8 km
Cafetaria1,5 km
Restaurant0,9 km
Huisarts1,8 km
Ziekenhuis4,3 km
Kinderdagverblijf0,6 km
BSO0,6 km
Alle voorzieningen in Oosterheem-Noord-Oost

Binnenkijken bij Nieuwlandstraat 142 te Zoetermeer

Meer meldingen in deze omgeving

112 melding
Vrijdag 28-11-2025 om 20:30
Oosterheemplein, Zoetermeer

112 melding
Vrijdag 28-11-2025 om 20:12
Oosterheemplein, Zoetermeer

112 melding
Vrijdag 28-11-2025 om 13:00
Oosterschelde, 2721NH Zoetermeer

Binnenkijken bij
Vrijdag 28-11-2025
Poortugaalstraat 27, 2729HA Zoetermeer

Nieuw bedrijf
November 2025
Lekstroom 35, 2721BP Zoetermeer

Nieuw bedrijf
November 2025
Willem Dreeslaan 357, 2729NE Zoetermeer

112 melding
Donderdag 27-11-2025 om 20:39
Schiebroekstraat, Zoetermeer

112 melding
Woensdag 26-11-2025 om 19:14
Lenastroom, Zoetermeer

Direct een e-mail ontvangen bij nieuwe meldingen in deze regio?

Meld je dan GRATIS aan voor de Oozo Alert service voor Oosterheem-Noord-Oost

Instellen

Meer nieuws in Oosterheem-Noord-Oost

Weten hoe eenvoudig het is om af te vallen? Zonder pillen en smeersels en zonder je in het zweet te werken!
Kijk op eenvoudig-afvallen.nl

© 2012 - 2025 OOZO.nl - info@oozo.nl - Gegevens verwijderen? | Disclaimer | Privacy statement