Beleggingsobject Afrikalaan 11 Maastricht-Airport

Afrikalaan 11, 6199AH Maastricht-Airport

Ontvang updates voor Verspreide huizen Vliegbasis Zuid-Limburg

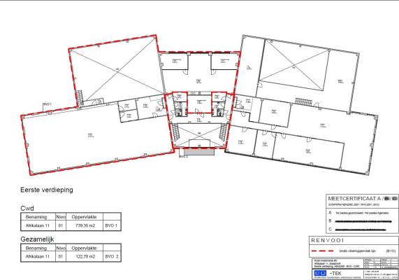
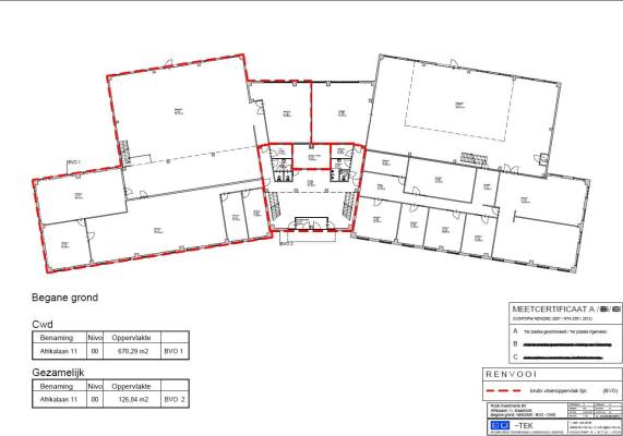
Dit bedrijfspand op het adres Afrikalaan 11 te Maastricht-Airport heeft Beleggingsobject als hoofdfunctie. Het betreft hier bestaande bouw uit 2022 met energielabel A+. De geschatte waarde van dit bedrijfsobject is 2.700.000 euro. Deze bedrijfsruimte heeft een oppervlakte van 2.465 m².

Bekijk alle bedrijfspanden in Verspreide huizen Vliegbasis Zuid-Limburg

Status bedrijfsobject Beleggingsobject Afrikalaan 11 Maastricht-Airport

Huidige status
Beschikbaar
Aangeboden sinds
28-02-2026
Aanvaarding
In overleg

Eigendom en waarde Beleggingsobject

Laatst bekende vraagprijs
€ 2.700.000 kosten koper

Omgeving Beleggingsobject Afrikalaan 11 Maastricht-Airport

Ligging
Bedrijventerrein en kantorenpark
Bereikbaarheid
Snelwegafrit op 500 m tot 1000 m

Indeling en inrichting bedrijfspand

Mogelijke functies
Bedrijfsruimte
Oppervlakte
2.465 m²
Perceel oppervlakte
5.560 m²
Parkeergelegenheid
59 niet-overdekte parkeerplaatsen

Voorzieningen in de buurt

Boodschappen1,8 km
Cafetaria1,6 km
Kinderdagverblijf1,0 km
Treinstation2,9 km
Alle voorzieningen in Verspreide huizen Vliegbasis Zuid-Limburg

Binnenkijken bij Afrikalaan 11 te Maastricht-Airport

Meer meldingen in deze omgeving


112 melding
Dinsdag 10-3-2026 om 07:09
Linderweg, Limburg

112 melding
Maandag 9-3-2026 om 21:15
Turfweg, Limburg

Nieuw bedrijf
Maart 2026
Europalaan 358, 6199AB Maastricht-Airport

112 melding
Zondag 8-3-2026 om 11:59
Turfweg, Limburg

112 melding
Zondag 8-3-2026 om 11:59
Turfweg, Limburg

Politienieuws
Donderdag 5-3-2026
Limburg

112 melding
Maandag 2-3-2026 om 13:32
Daniken, Limburg

Direct een e-mail ontvangen bij nieuwe meldingen in deze regio?

Meld je dan GRATIS aan voor de Oozo Alert service voor Verspreide huizen Vliegbasis Zuid-Limburg

Instellen

Meer nieuws in Verspreide huizen Vliegbasis Zuid-Limburg

Weten hoe eenvoudig het is om af te vallen? Zonder pillen en smeersels en zonder je in het zweet te werken!
Kijk op eenvoudig-afvallen.nl

© 2012 - 2026 OOZO.nl - info@oozo.nl - Gegevens verwijderen? | Disclaimer | Privacy statement