Winkelruimte Boterhoek 175 Best

Boterhoek 175, 5683AZ Best

Ontvang updates voor Centrum

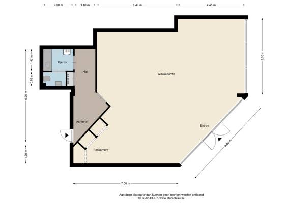
Dit bedrijfspand op het adres Boterhoek 175 te Best is geschikt als winkelruimte. Het betreft hier bestaande bouw uit 1983. Een energielabel is niet beschikbaar. Deze winkelruimte heeft een oppervlakte van 108 m² (in units vanaf 1 m²) en bestaat uit 1 bouwlaag.

Bekijk alle bedrijfspanden in Centrum

Status bedrijfsobject Winkelruimte Boterhoek 175 Best

Huidige status
Beschikbaar
Aangeboden sinds
19 november 2025
Aanvaarding
Per direct beschikbaar

Eigendom en huurprijs winkelruimte

Laatst bekende huurprijs
€ 2.150 per maand

Omgeving Winkelruimte Boterhoek 175 Best

Bijdrage winkeliersvereniging
Nee
Welstandsklasse
B1

Indeling en inrichting bedrijfspand

Oppervlakte
108 m² (in units vanaf 1 m²)
Oppervlakte verkoopvloer
108 m²
Breedte gevel
6,4 m

Voorzieningen in de buurt

Boodschappen0,2 km
Cafetaria0,2 km
Kinderdagverblijf0,4 km
Treinstation1,0 km
Alle voorzieningen in Centrum

Binnenkijken bij Boterhoek 175 te Best

Meer meldingen in deze omgeving

112 melding
Donderdag 20-11-2025 om 15:32
Boterhoek, 5683AX Best

112 melding
Donderdag 20-11-2025 om 15:31
Boterhoek, 5683AX Best

112 melding
Donderdag 20-11-2025 om 14:44
Boterhoek, Best

112 melding
Donderdag 20-11-2025 om 14:44
Boterhoek, Best

112 melding
Donderdag 20-11-2025 om 11:21
Boterhoek, Best

112 melding
Woensdag 19-11-2025 om 15:16
Kapelaan J.A. Heerenstraat, 5683ED Best

112 melding
Woensdag 19-11-2025 om 12:44
Hoofdstraat, 5683AM Best

112 melding
Woensdag 19-11-2025 om 10:33
Hoofdstraat, 5683AM Best

Direct een e-mail ontvangen bij nieuwe meldingen in deze regio?

Meld je dan GRATIS aan voor de Oozo Alert service voor Centrum

Instellen

Meer nieuws in Centrum

Weten hoe eenvoudig het is om af te vallen? Zonder pillen en smeersels en zonder je in het zweet te werken!
Kijk op eenvoudig-afvallen.nl

© 2012 - 2025 OOZO.nl - info@oozo.nl - Gegevens verwijderen? | Disclaimer | Privacy statement