Bedrijfsruimte Nijverheidsweg 2-A Hapert

Nijverheidsweg 2-A , 5527AG Hapert

Ontvang updates voor Industrieterrein Hapert

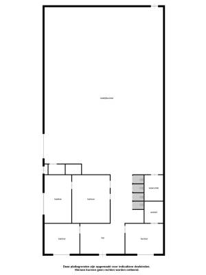
Dit bedrijfspand op het adres Nijverheidsweg 2-A te Hapert is breed inzetbaar als bedrijfsruimte. Het betreft hier bestaande bouw uit 1980. Een energielabel is niet beschikbaar. Het pand beschikt over één of meerdere voorzieningen waaronder lichtstraten, overheaddeuren, krachtstroom, betonvloer, heater, inbouwarmaturen en te openen ramen. Deze bedrijfsruimte heeft een oppervlakte van 435 m² (in units vanaf 300 m²) en bestaat uit 1 bouwlaag.

Bekijk alle bedrijfspanden in Industrieterrein Hapert

Status bedrijfsobject Bedrijfsruimte Nijverheidsweg 2-A Hapert

Huidige status
Beschikbaar
Aangeboden sinds
6 november 2025
Aanvaarding
In overleg

Eigendom en huurprijs bedrijfsruimte

Laatst bekende huurprijs
€ 28.800 per jaar

Omgeving Bedrijfsruimte Nijverheidsweg 2-A Hapert

Ligging
Bedrijventerrein
Bereikbaarheid
Snelwegafrit op 500 m tot 1000 m

Indeling en inrichting bedrijfspand

Oppervlakte
435 m² (in units vanaf 300 m²)
Oppervlakte bedrijfshal
300 m²
Parkeergelegenheid
5 niet-overdekte parkeerplaatsen

Voorzieningen in de buurt

Boodschappen0,0 km
Cafetaria0,0 km
Kinderdagverblijf0,0 km
Treinstation0,0 km
Alle voorzieningen in Industrieterrein Hapert

Binnenkijken bij Nijverheidsweg 2-A te Hapert

Meer meldingen in deze omgeving

112 melding
Dinsdag 10-3-2026 om 06:31
Verbindingsweg, 5527AM Hapert

Nieuw bedrijf
Februari 2026
Industrieweg 13, 5527AJ Hapert

Nieuw bedrijf
Februari 2026
Industrieweg 13, 5527AJ Hapert

Onroerend goed
Zondag 25-1-2026
Industrieweg 1-a, 5527AJ Hapert

112 melding
Vrijdag 9-1-2026 om 15:06
Nijverheidsweg, 5527AG Hapert

Nieuw bedrijf
Oktober 2025
Metaalweg 8, 5527AK Hapert

Nieuw bedrijf
Oktober 2025
Verbindingsweg 8, 5527AM Hapert

Nieuw bedrijf
Oktober 2025
Industrieweg 5, 5527AJ Hapert

Direct een e-mail ontvangen bij nieuwe meldingen in deze regio?

Meld je dan GRATIS aan voor de Oozo Alert service voor Industrieterrein Hapert

Instellen

Meer nieuws in Industrieterrein Hapert

Weten hoe eenvoudig het is om af te vallen? Zonder pillen en smeersels en zonder je in het zweet te werken!
Kijk op eenvoudig-afvallen.nl

© 2012 - 2026 OOZO.nl - info@oozo.nl - Gegevens verwijderen? | Disclaimer | Privacy statement