Bedrijfsruimte Essebaan 11 Capelle aan den IJssel

Essebaan 11, 2908LJ Capelle aan den IJssel

Ontvang updates voor Hoofdweg Sector D

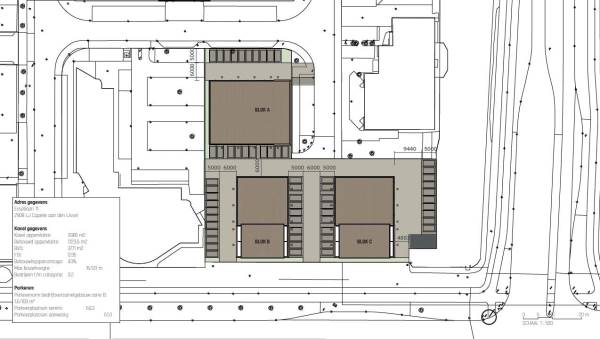
Dit bedrijfspand op het adres Essebaan 11 te Capelle aan den IJssel is breed inzetbaar als bedrijfsruimte. Het betreft hier nieuwbouw . Een energielabel is niet verplicht. Het pand beschikt over één of meerdere voorzieningen waaronder betonvloer en te openen ramen. Deze bedrijfsruimte heeft een oppervlakte van 139 m² en bestaat uit 3 bouwlagen.

Bekijk alle bedrijfspanden in Hoofdweg Sector D

Status bedrijfsobject Bedrijfsruimte Essebaan 11 Capelle aan den IJssel

Huidige status
Beschikbaar
Aangeboden sinds
13-01-2026
Aanvaarding
In overleg

Eigendom en huurprijs bedrijfsruimte

Laatst bekende huurprijs
€ 1.815 per maand

Omgeving Bedrijfsruimte Essebaan 11 Capelle aan den IJssel

Ligging
Bedrijventerrein
Bereikbaarheid
Bushalte op minder dan 500 m, metrohalte op 1000 m

Indeling en inrichting bedrijfspand

Oppervlakte
139 m²
Oppervlakte bedrijfshal
51 m²
Draagvermogen
1.000 kg/m²
Vrije hoogte
3,7 m
Parkeergelegenheid
2 niet-overdekte parkeerplaatsen

Voorzieningen in de buurt

Boodschappen0,0 km
Cafetaria0,0 km
Kinderdagverblijf0,0 km
Treinstation0,0 km
Alle voorzieningen in Hoofdweg Sector D

Binnenkijken bij Essebaan 11 te Capelle aan den IJssel

Meer meldingen in deze omgeving

112 melding
Dinsdag 10-3-2026 om 13:09
Essebaan, 2908LJ Capelle aan den IJssel

Faillissement
Maandag 9-3-2026
Essebaan 15A, 2908LJ Capelle aan den IJssel

Faillissement
Vrijdag 13-2-2026
Essebaan 19A, 2908LJ Capelle aan den IJssel

Nieuw bedrijf
Januari 2026
Molenbaan 4, 2908LM Capelle aan den IJssel

Nieuw bedrijf
December 2025
Essebaan 41, 2908LJ Capelle aan den IJssel

Nieuw bedrijf
December 2025
Essebaan 29, 2908LJ Capelle aan den IJssel

112 melding
Woensdag 26-11-2025 om 12:53
Essebaan, 2908LJ Capelle aan den IJssel

112 melding
Vrijdag 7-11-2025 om 09:27
Essebaan, 2908LK Capelle aan den IJssel

Direct een e-mail ontvangen bij nieuwe meldingen in deze regio?

Meld je dan GRATIS aan voor de Oozo Alert service voor Hoofdweg Sector D

Instellen

Meer nieuws in Hoofdweg Sector D

Weten hoe eenvoudig het is om af te vallen? Zonder pillen en smeersels en zonder je in het zweet te werken!
Kijk op eenvoudig-afvallen.nl

© 2012 - 2026 OOZO.nl - info@oozo.nl - Gegevens verwijderen? | Disclaimer | Privacy statement