Bedrijfsruimte Hoofdweg 328 Capelle aan den IJssel

Hoofdweg 328, 2908LC Capelle aan den IJssel

Ontvang updates voor Hoofdweg Sector E en F

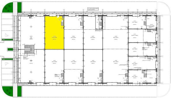
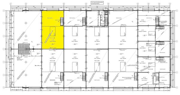
Dit bedrijfspand op het adres Hoofdweg 328 te Capelle aan den IJssel is breed inzetbaar als bedrijfsruimte. Het betreft hier bestaande bouw uit 2018. Een energielabel is niet verplicht. Het pand beschikt over één of meerdere voorzieningen waaronder overheaddeuren, krachtstroom, betonvloer, toilet, pantry en te openen ramen. Deze bedrijfsruimte heeft een oppervlakte van 256 m² en bestaat uit 2 bouwlagen.

Bekijk alle bedrijfspanden in Hoofdweg Sector E en F

Status bedrijfsobject Bedrijfsruimte Hoofdweg 328 Capelle aan den IJssel

Huidige status
Beschikbaar
Aangeboden sinds
13 januari 2026
Aanvaarding
In overleg

Eigendom en huurprijs bedrijfsruimte

Laatst bekende huurprijs
€ 2.500 per maand
Servicekosten
€ 9 per vierkante meter per jaar (21% BTW van toep

Omgeving Bedrijfsruimte Hoofdweg 328 Capelle aan den IJssel

Ligging
Bedrijventerrein
Bereikbaarheid
Bushalte op minder dan 500 m, metrohalte op 1000 m

Indeling en inrichting bedrijfspand

Oppervlakte
256 m²
Oppervlakte bedrijfshal
128 m²
Draagvermogen
2.000 kg/m²
Vrije hoogte
3 m
Parkeergelegenheid
3 niet-overdekte parkeerplaatsen

Voorzieningen in de buurt

Boodschappen0,0 km
Cafetaria0,0 km
Kinderdagverblijf0,0 km
Treinstation0,0 km
Alle voorzieningen in Hoofdweg Sector E en F

Binnenkijken bij Hoofdweg 328 te Capelle aan den IJssel

Meer meldingen in deze omgeving

112 melding
Dinsdag 17-3-2026 om 20:50
Burgemeester Schalijlaan, 2908LS Capelle aan den IJssel

112 melding
Dinsdag 10-3-2026 om 21:24
Burgemeester Schalijlaan, 2908LS Capelle aan den IJssel

112 melding
Zondag 15-2-2026 om 08:53
Burgemeester Schalijlaan, 2908LS Capelle aan den IJssel

112 melding
Vrijdag 13-2-2026 om 12:09
Burgemeester Schalijlaan, 2908LS Capelle aan den IJssel

112 melding
Dinsdag 10-2-2026 om 11:02
Hoofdweg, 2908LC Capelle aan den IJssel

Binnenkijken bij
Zaterdag 17-1-2026
Hoofdweg 288, 2908LC Capelle aan den IJssel

Faillissement
Dinsdag 13-1-2026
Hoofdweg 20, 2908LC CAPELLE AAN DEN IJSSEL

Nieuw bedrijf
December 2025
Burgemeester Schalijlaan 70, 2908LS Capelle aan den IJssel

Direct een e-mail ontvangen bij nieuwe meldingen in deze regio?

Meld je dan GRATIS aan voor de Oozo Alert service voor Hoofdweg Sector E en F

Instellen

Meer nieuws in Hoofdweg Sector E en F

Weten hoe eenvoudig het is om af te vallen? Zonder pillen en smeersels en zonder je in het zweet te werken!
Kijk op eenvoudig-afvallen.nl

© 2012 - 2026 OOZO.nl - info@oozo.nl - Gegevens verwijderen? | Disclaimer | Privacy statement