Bedrijfsruimte Einsteinweg 2- 8 Delft

Einsteinweg 2- 8, 2627BN Delft

Ontvang updates voor Bedrijventerrein Schieweg-Zuid

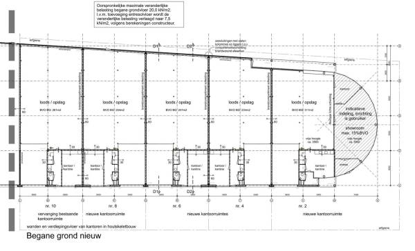
Dit bedrijfspand op het adres Einsteinweg 2- 8 te Delft is breed inzetbaar als bedrijfsruimte. Het betreft hier bestaande bouw . Een energielabel is niet beschikbaar. Het pand beschikt over één of meerdere voorzieningen waaronder airconditioning, overheaddeuren, betonvloer, toilet en pantry. Deze bedrijfsruimte heeft een oppervlakte van 1.820 m² (in units vanaf 416 m²) en bestaat uit 2 bouwlagen.

Bekijk alle bedrijfspanden in Bedrijventerrein Schieweg-Zuid

Status bedrijfsobject Bedrijfsruimte Einsteinweg 2- 8 Delft

Huidige status
Beschikbaar
Aangeboden sinds
03-12-2025
Aanvaarding
In overleg

Eigendom en huurprijs bedrijfsruimte

Laatst bekende huurprijs
€ 100 per vierkante meter per jaar

Omgeving Bedrijfsruimte Einsteinweg 2- 8 Delft

Ligging
Bedrijventerrein
Bereikbaarheid
Bushalte op 500 m tot 1000 m, NS Intercitystation

Indeling en inrichting bedrijfspand

Oppervlakte
1.820 m² (in units vanaf 416 m²)
Oppervlakte bedrijfshal
1.775 m²
Draagvermogen
2.000 kg/m²
Vrije hoogte
32 m
Parkeergelegenheid
14 niet-overdekte parkeerplaatsen

Voorzieningen in de buurt

Boodschappen1,9 km
Cafetaria0,5 km
Kinderdagverblijf1,8 km
Treinstation2,1 km
Alle voorzieningen in Bedrijventerrein Schieweg-Zuid

Binnenkijken bij Einsteinweg 2- 8 te Delft

Meer meldingen in deze omgeving

Nieuw bedrijf
December 2025
Voltaweg 12, 2627BB Delft

112 melding
Donderdag 27-11-2025 om 11:38
Energieweg, Delft

112 melding
Donderdag 27-11-2025 om 11:37
Energieweg, Delft

Faillissement
Vrijdag 14-11-2025
Einsteinweg 20, 2627BN Delft

112 melding
Donderdag 13-11-2025 om 13:32
Faradayweg, 2627AX Delft

Faillissement
Woensdag 12-11-2025
Faradayweg 8A, 2627AX Delft

112 melding
Vrijdag 24-10-2025 om 10:44
Turbineweg, 2627BP Delft

112 melding
Vrijdag 24-10-2025 om 10:44
Turbineweg, 2627BP Delft

Direct een e-mail ontvangen bij nieuwe meldingen in deze regio?

Meld je dan GRATIS aan voor de Oozo Alert service voor Bedrijventerrein Schieweg-Zuid

Instellen

Meer nieuws in Bedrijventerrein Schieweg-Zuid

Weten hoe eenvoudig het is om af te vallen? Zonder pillen en smeersels en zonder je in het zweet te werken!
Kijk op eenvoudig-afvallen.nl

© 2012 - 2025 OOZO.nl - info@oozo.nl - Gegevens verwijderen? | Disclaimer | Privacy statement