Bedrijfsruimte Vulcanusweg 259-C Delft

Vulcanusweg 259-C , 2624AV Delft

Ontvang updates voor Bedrijventerrein Vulcanusweg

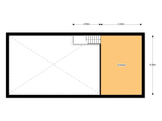
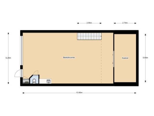
Dit bedrijfspand op het adres Vulcanusweg 259-C te Delft is breed inzetbaar als bedrijfsruimte. Het betreft hier bestaande bouw uit 2010. Een energielabel is niet beschikbaar. Het pand beschikt over één of meerdere voorzieningen waaronder overheaddeuren. Deze bedrijfsruimte heeft een oppervlakte van 140 m².

Bekijk alle bedrijfspanden in Bedrijventerrein Vulcanusweg

Status bedrijfsobject Bedrijfsruimte Vulcanusweg 259-C Delft

Huidige status
Beschikbaar
Aangeboden sinds
15 januari 2026
Aanvaarding
In overleg

Eigendom en huurprijs bedrijfsruimte

Laatst bekende huurprijs
€ 1.425 per maand

Omgeving Bedrijfsruimte Vulcanusweg 259-C Delft

Ligging
Bedrijventerrein, stadscentrum/dorpskern, in woonw
Bereikbaarheid
NS Intercitystation op minder dan 500 m en snelweg

Indeling en inrichting bedrijfspand

Oppervlakte
140 m²
Oppervlakte bedrijfshal
140 m²
Vrije hoogte
5 m
Vrije overspanning
7 m
Parkeergelegenheid
2 niet-overdekte parkeerplaatsen

Voorzieningen in de buurt

Boodschappen0,0 km
Cafetaria0,0 km
Kinderdagverblijf0,0 km
Treinstation0,0 km
Alle voorzieningen in Bedrijventerrein Vulcanusweg

Binnenkijken bij Vulcanusweg 259-C te Delft

Meer meldingen in deze omgeving

Nieuw bedrijf
December 2025
Vulcanusweg 269, 2624AV Delft

Nieuw bedrijf
Oktober 2025
Vulcanusweg 273, 2624AV Delft

Nieuw bedrijf
Juni 2025
Vulcanusweg 261D, 2624AV Delft

Nieuw bedrijf
April 2025
Vulcanusweg 263C, 2624AV Delft

Nieuw bedrijf
Maart 2025
Vulcanusweg 263A, 2624AV Delft

Nieuw bedrijf
Maart 2025
Vulcanusweg 263A, 2624AV Delft

Nieuw bedrijf
Maart 2025
Vulcanusweg 291A, 2624AV Delft

Nieuw bedrijf
Maart 2025
Vulcanusweg 281, 2624AV Delft

Direct een e-mail ontvangen bij nieuwe meldingen in deze regio?

Meld je dan GRATIS aan voor de Oozo Alert service voor Bedrijventerrein Vulcanusweg

Instellen

Meer nieuws in Bedrijventerrein Vulcanusweg

Weten hoe eenvoudig het is om af te vallen? Zonder pillen en smeersels en zonder je in het zweet te werken!
Kijk op eenvoudig-afvallen.nl

© 2012 - 2026 OOZO.nl - info@oozo.nl - Gegevens verwijderen? | Disclaimer | Privacy statement