Bedrijfsruimte Havenstraat 90 Doetinchem

Havenstraat 90, 7005AG Doetinchem

Ontvang updates voor Verheulsweide-Zuid

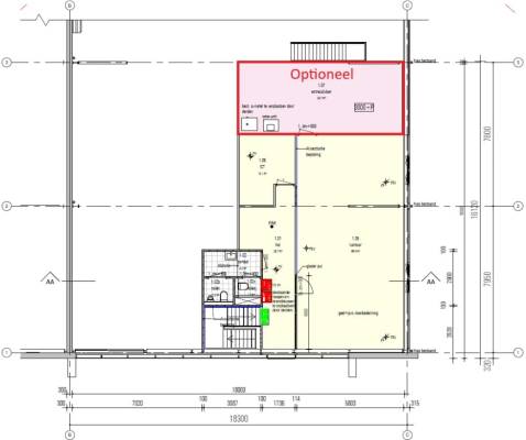
Dit bedrijfspand op het adres Havenstraat 90 te Doetinchem is breed inzetbaar als bedrijfsruimte. Het betreft hier bestaande bouw uit 1989 met energielabel B. Het pand beschikt over één of meerdere voorzieningen waaronder krachtstroom, betonvloer, toilet en pantry. Deze bedrijfsruimte heeft een oppervlakte van 980 m² en bestaat uit 2 bouwlagen.

Bekijk alle bedrijfspanden in Verheulsweide-Zuid

Status bedrijfsobject Bedrijfsruimte Havenstraat 90 Doetinchem

Huidige status
Beschikbaar
Aangeboden sinds
05-12-2025
Aanvaarding
In overleg

Eigendom en huurprijs bedrijfsruimte

Laatst bekende huurprijs
Huurprijs op aanvraag

Omgeving Bedrijfsruimte Havenstraat 90 Doetinchem

Ligging
Bedrijventerrein
Bereikbaarheid
NS Intercitystation op 1500 m tot 2000 m en snelwe

Indeling en inrichting bedrijfspand

Oppervlakte
980 m²
Oppervlakte bedrijfshal
750 m²
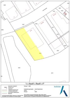
Perceel oppervlakte
6.161 m²

Voorzieningen in de buurt

Boodschappen1,1 km
Cafetaria1,1 km
Kinderdagverblijf1,2 km
Treinstation1,1 km
Alle voorzieningen in Verheulsweide-Zuid

Binnenkijken bij Havenstraat 90 te Doetinchem

Meer meldingen in deze omgeving

Nieuw bedrijf
December 2025
Vlijtstraat 40, 7005BN Doetinchem

112 melding
Woensdag 3-12-2025 om 20:05
Havenstraat, 7005AG Doetinchem

112 melding
Woensdag 3-12-2025 om 20:05
Havenstraat, 7005AG Doetinchem

112 melding
Dinsdag 2-12-2025 om 07:28
Havenstraat, 7005AG Doetinchem

112 melding
Dinsdag 2-12-2025 om 07:28
Havenstraat, 7005AG Doetinchem

Nieuw bedrijf
November 2025
Nijverheidsweg 12, 7005BJ Doetinchem

112 melding
Woensdag 19-11-2025 om 10:57
Havenstraat, 7005AG Doetinchem

Faillissement
Maandag 17-11-2025
Nijverheidsweg 12, 7005BJ Doetinchem

Direct een e-mail ontvangen bij nieuwe meldingen in deze regio?

Meld je dan GRATIS aan voor de Oozo Alert service voor Verheulsweide-Zuid

Instellen

Meer nieuws in Verheulsweide-Zuid

Weten hoe eenvoudig het is om af te vallen? Zonder pillen en smeersels en zonder je in het zweet te werken!
Kijk op eenvoudig-afvallen.nl

© 2012 - 2025 OOZO.nl - info@oozo.nl - Gegevens verwijderen? | Disclaimer | Privacy statement