Bedrijfsruimte Aventurijn 1004 Dordrecht

Aventurijn 1004, 3316LB Dordrecht

Ontvang updates voor Dordtse Kil III

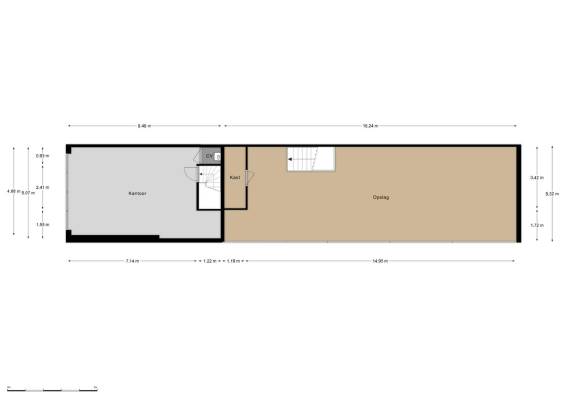
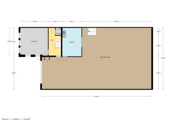
Dit bedrijfspand op het adres Aventurijn 1004 te Dordrecht is breed inzetbaar als bedrijfsruimte. Het betreft hier bestaande bouw uit 2008. Een energielabel is niet beschikbaar. Het pand beschikt over één of meerdere voorzieningen waaronder overheaddeuren, krachtstroom, betonvloer, toilet, airconditioning, inbouwarmaturen en te openen ramen. Deze bedrijfsruimte heeft een oppervlakte van 456 m² en bestaat uit 2 bouwlagen.

Bekijk alle bedrijfspanden in Dordtse Kil III

Status bedrijfsobject Bedrijfsruimte Aventurijn 1004 Dordrecht

Huidige status
Beschikbaar
Aangeboden sinds
14 januari 2026
Aanvaarding
Per direct beschikbaar

Eigendom en huurprijs bedrijfsruimte

Laatst bekende huurprijs
€ 2.900 per maand

Omgeving Bedrijfsruimte Aventurijn 1004 Dordrecht

Ligging
Bedrijventerrein en kantorenpark

Indeling en inrichting bedrijfspand

Oppervlakte
456 m²
Oppervlakte bedrijfshal
394 m²
Perceel oppervlakte
258 m²
Draagvermogen
1.500 kg/m²
Vrije hoogte
6,2 m
Parkeergelegenheid
3 niet-overdekte parkeerplaatsen

Voorzieningen in de buurt

Boodschappen1,2 km
Cafetaria1,0 km
Kinderdagverblijf2,9 km
Treinstation4,1 km
Alle voorzieningen in Dordtse Kil III

Binnenkijken bij Aventurijn 1004 te Dordrecht

Meer meldingen in deze omgeving

112 melding
Dinsdag 27-1-2026 om 11:24
Aventurijn, 3316LB Dordrecht

112 melding
Dinsdag 27-1-2026 om 10:26
Opaal, 3316LE Dordrecht

112 melding
Dinsdag 27-1-2026 om 10:24
Olivijn, 3316KH Dordrecht

112 melding
Dinsdag 27-1-2026 om 10:23
Labradoriet, 3316KB Dordrecht

112 melding
Dinsdag 27-1-2026 om 09:50
Labradoriet, 3316KB Dordrecht

112 melding
Maandag 26-1-2026 om 17:25
Heliotroopring, 3316KG Dordrecht

112 melding
Maandag 26-1-2026 om 17:25
Heliotroopring, 3316KG Dordrecht

112 melding
Vrijdag 23-1-2026 om 10:06
Opaal, 3316LE Dordrecht

Direct een e-mail ontvangen bij nieuwe meldingen in deze regio?

Meld je dan GRATIS aan voor de Oozo Alert service voor Dordtse Kil III

Instellen

Meer nieuws in Dordtse Kil III

Weten hoe eenvoudig het is om af te vallen? Zonder pillen en smeersels en zonder je in het zweet te werken!
Kijk op eenvoudig-afvallen.nl

© 2012 - 2026 OOZO.nl - info@oozo.nl - Gegevens verwijderen? | Disclaimer | Privacy statement