Bedrijfsruimte Rijstenweg 10-A Eindhoven

Rijstenweg 10-A , 5652CG Eindhoven

Ontvang updates voor Het Ven

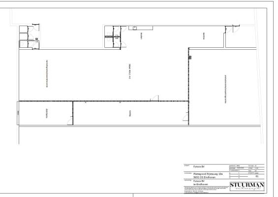
Dit bedrijfspand op het adres Rijstenweg 10-A te Eindhoven is breed inzetbaar als bedrijfsruimte. Het betreft hier bestaande bouw uit 1976 met energielabel A. Het pand beschikt over één of meerdere voorzieningen waaronder airconditioning, lichtstraten, overheaddeuren, betonvloer, toilet en pantry. Deze bedrijfsruimte heeft een oppervlakte van 469 m².

Bekijk alle bedrijfspanden in Het Ven

Status bedrijfsobject Bedrijfsruimte Rijstenweg 10-A Eindhoven

Huidige status
Beschikbaar
Aangeboden sinds
29-04-2026
Aanvaarding
Per direct beschikbaar

Eigendom en huurprijs bedrijfsruimte

Laatst bekende huurprijs
€ 46.200 per jaar

Omgeving Bedrijfsruimte Rijstenweg 10-A Eindhoven

Ligging
Bedrijventerrein

Indeling en inrichting bedrijfspand

Oppervlakte
469 m²
Oppervlakte bedrijfshal
469 m²
Perceel oppervlakte
996 m²

Voorzieningen in de buurt

Binnenkijken bij Rijstenweg 10-A te Eindhoven

Meer meldingen in deze omgeving

Nieuw bedrijf
April 2026
Bredalaan 39, 5652JA Eindhoven

Nieuw bedrijf
April 2026
Carmelitessenstraat 25, 5652EW Eindhoven

Nieuw bedrijf
April 2026
Steenbergenstraat 5, 5652JT Eindhoven

Nieuw bedrijf
April 2026
Speelheuvelweg 8, 5652CH Eindhoven

Binnenkijken bij
Donderdag 16-4-2026
Zevenbergenstraat 6, 5652JP Eindhoven

Binnenkijken bij
Maandag 13-4-2026
Bredalaan 57, 5652JB Eindhoven

Binnenkijken bij
Maandag 13-4-2026
Bredalaan 138A, 5652JJ Eindhoven

112 melding
Zaterdag 11-4-2026 om 11:11
Bredalaan, Eindhoven

Direct een e-mail ontvangen bij nieuwe meldingen in deze regio?

Meld je dan GRATIS aan voor de Oozo Alert service voor Het Ven

Instellen

Meer nieuws in Het Ven

Weten hoe eenvoudig het is om af te vallen? Zonder pillen en smeersels en zonder je in het zweet te werken!
Kijk op eenvoudig-afvallen.nl

© 2012 - 2026 OOZO.nl - info@oozo.nl - Gegevens verwijderen? | Disclaimer | Privacy statement