Winkelruimte Virmundtstraat 9 Gemert

Virmundtstraat 9, 5421BT Gemert

Ontvang updates voor Gemert-Centrum

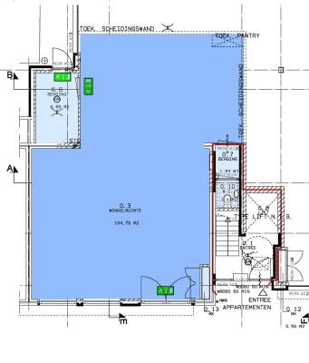
Dit bedrijfspand op het adres Virmundtstraat 9 te Gemert is geschikt als winkelruimte. Het betreft hier bestaande bouw uit 2009. Een energielabel is niet beschikbaar. Deze winkelruimte heeft een oppervlakte van 148 m² en bestaat uit 1 bouwlaag.

Bekijk alle bedrijfspanden in Gemert-Centrum

Status bedrijfsobject Winkelruimte Virmundtstraat 9 Gemert

Huidige status
Beschikbaar
Aangeboden sinds
13-02-2026
Aanvaarding
In overleg

Eigendom en huurprijs winkelruimte

Laatst bekende huurprijs
€ 25.160 per jaar

Omgeving Winkelruimte Virmundtstraat 9 Gemert

Ligging
Stadscentrum/dorpskern
Bijdrage winkeliersvereniging
Nee

Indeling en inrichting bedrijfspand

Oppervlakte
148 m²
Oppervlakte verkoopvloer
105 m²
Breedte gevel
8,5 m

Voorzieningen in de buurt

Boodschappen0,4 km
Cafetaria0,2 km
Kinderdagverblijf0,5 km
Treinstation11,9 km
Alle voorzieningen in Gemert-Centrum

Binnenkijken bij Virmundtstraat 9 te Gemert

Meer meldingen in deze omgeving

Onroerend goed
Donderdag 12-2-2026
Nieuwstraat 1, 5421KN Gemert

112 melding
Donderdag 5-2-2026 om 16:27
Elisabethplaats, 5421LC Gemert

Binnenkijken bij
Donderdag 5-2-2026
Nieuwstraat 63, 5421KN Gemert

Nieuw bedrijf
Februari 2026
Berglarenstraat 35, 5421HL Gemert

Nieuw bedrijf
Februari 2026
Molenakkerstraat 84, 5421BP Gemert

112 melding
Donderdag 29-1-2026 om 12:27
Alde-Biezenstraat, Gemert

Nieuw bedrijf
Januari 2026
Dr. Kuijperstraat 4, 5421CS Gemert

112 melding
Woensdag 21-1-2026 om 17:01
Mariënburg, 5421LX Gemert

Direct een e-mail ontvangen bij nieuwe meldingen in deze regio?

Meld je dan GRATIS aan voor de Oozo Alert service voor Gemert-Centrum

Instellen

Meer nieuws in Gemert-Centrum

Weten hoe eenvoudig het is om af te vallen? Zonder pillen en smeersels en zonder je in het zweet te werken!
Kijk op eenvoudig-afvallen.nl

© 2012 - 2026 OOZO.nl - info@oozo.nl - Gegevens verwijderen? | Disclaimer | Privacy statement