Bedrijfsruimte Fahrenheitstraat 52 Harderwijk

Fahrenheitstraat 52, 3846CD Harderwijk

Ontvang updates voor Lorentz II

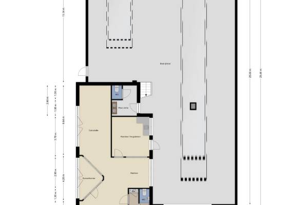
Dit bedrijfspand op het adres Fahrenheitstraat 52 te Harderwijk is breed inzetbaar als bedrijfsruimte. Het betreft hier bestaande bouw uit 1999 met energielabel G. Deze bedrijfsruimte heeft een oppervlakte van 425 m² en bestaat uit 1 bouwlaag.

Bekijk alle bedrijfspanden in Lorentz II

Status bedrijfsobject Bedrijfsruimte Fahrenheitstraat 52 Harderwijk

Huidige status
Beschikbaar
Aangeboden sinds
24-12-2024
Aanvaarding
Per direct beschikbaar

Eigendom en huurprijs bedrijfsruimte

Laatst bekende huurprijs
Huurprijs op aanvraag

Omgeving Bedrijfsruimte Fahrenheitstraat 52 Harderwijk

Ligging
Bedrijventerrein
Bereikbaarheid
Snelwegafrit op 2000 m tot 3000 m

Indeling en inrichting bedrijfspand

Oppervlakte
425 m²
Oppervlakte bedrijfshal
350 m²
Perceel oppervlakte
1.001 m²

Voorzieningen in de buurt

Boodschappen0,0 km
Cafetaria0,0 km
Kinderdagverblijf0,0 km
Treinstation0,0 km
Alle voorzieningen in Lorentz II

Binnenkijken bij Fahrenheitstraat 52 te Harderwijk

Meer meldingen in deze omgeving

Nieuw bedrijf
Januari 2026
Nobelstraat 18, 3846CG Harderwijk

Nieuw bedrijf
December 2025
Van Leeuwenhoekstraat 1, 3846CA Harderwijk

Faillissement
Vrijdag 31-10-2025
Van Leeuwenhoekstraat 26, 3846CB Harderwijk

Faillissement
Vrijdag 31-10-2025
Van Leeuwenhoekstraat 26, 3846CB Harderwijk

Nieuw bedrijf
Oktober 2025
Van Leeuwenhoekstraat 11, 3846CA Harderwijk

Onroerend goed
Woensdag 1-10-2025
Nobelstraat 31- 5, 3846CE Harderwijk

112 melding
Maandag 1-9-2025 om 23:46
Daltonstraat, 3846BX Harderwijk

Onroerend goed
Zaterdag 16-8-2025
Nobelstraat 29- 8, 3846CE Harderwijk

Direct een e-mail ontvangen bij nieuwe meldingen in deze regio?

Meld je dan GRATIS aan voor de Oozo Alert service voor Lorentz II

Instellen

Meer nieuws in Lorentz II

Weten hoe eenvoudig het is om af te vallen? Zonder pillen en smeersels en zonder je in het zweet te werken!
Kijk op eenvoudig-afvallen.nl

© 2012 - 2026 OOZO.nl - info@oozo.nl - Gegevens verwijderen? | Disclaimer | Privacy statement