Horecagelegenheid Heisterberg 66- 68 Hoensbroek

Heisterberg 66- 68, 6431JC Hoensbroek

Ontvang updates voor De Dem en omgeving

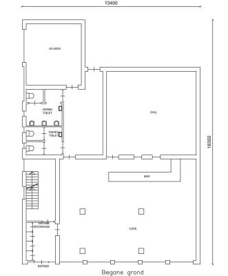
Dit bedrijfspand op het adres Heisterberg 66- 68 te Hoensbroek is geschikt als Horecagelegenheid. Het betreft hier bestaande bouw uit 1962 met energielabel D. De geschatte waarde van dit bedrijfsobject is 295.000 euro. Deze horecagelegenheid heeft een oppervlakte van 177 m² en bestaat uit 1 bouwlaag.

Bekijk alle bedrijfspanden in De Dem en omgeving

Status bedrijfsobject Horecagelegenheid Heisterberg 66- 68 Hoensbroek

Huidige status
Beschikbaar
Aangeboden sinds
20 oktober 2025
Aanvaarding
In overleg

Eigendom en waarde Horecagelegenheid

Laatst bekende vraagprijs
€ 295.000 kosten koper

Omgeving Horecagelegenheid Heisterberg 66- 68 Hoensbroek

Ligging
In woonwijk
Bereikbaarheid
Bushalte op minder dan 500 m, NS Intercitystation

Indeling en inrichting bedrijfspand

Mogelijke functies
Belegging en winkelruimte
Oppervlakte
177 m²
Perceel oppervlakte
588 m²
Oppervlakte verkoopvloer
177 m²

Voorzieningen in de buurt

Boodschappen0,5 km
Cafetaria0,3 km
Kinderdagverblijf0,6 km
Treinstation2,8 km
Alle voorzieningen in De Dem en omgeving

Binnenkijken bij Heisterberg 66- 68 te Hoensbroek

Meer meldingen in deze omgeving

Binnenkijken bij
Woensdag 29-10-2025
Heisterberg 57, 6431JB Hoensbroek

Binnenkijken bij
Woensdag 29-10-2025
Prof. Einthovenstraat 32, 6431VC Hoensbroek

Binnenkijken bij
Woensdag 29-10-2025
Nieuwenhofstraat 15, 6431JR Hoensbroek

Binnenkijken bij
Woensdag 29-10-2025
Demstraat 78B, 6431TG Hoensbroek

112 melding
Zaterdag 25-10-2025 om 00:01
Olof Palmestraat, 6431WD Hoensbroek

Binnenkijken bij
Zondag 19-10-2025
Akerstraat-Noord 314, 6431HW Hoensbroek

Binnenkijken bij
Vrijdag 17-10-2025
Olof Palmestraat 16, 6431WD Hoensbroek

Onroerend goed
Zaterdag 11-10-2025
Heisterberg 8, 6431JC Hoensbroek

Direct een e-mail ontvangen bij nieuwe meldingen in deze regio?

Meld je dan GRATIS aan voor de Oozo Alert service voor De Dem en omgeving

Instellen

Meer nieuws in De Dem en omgeving

Weten hoe eenvoudig het is om af te vallen? Zonder pillen en smeersels en zonder je in het zweet te werken!
Kijk op eenvoudig-afvallen.nl

© 2012 - 2025 OOZO.nl - info@oozo.nl - Gegevens verwijderen? | Disclaimer | Privacy statement