Bedrijfsruimte de Lavalstraat 13-a Hoogeveen

de Lavalstraat 13-a , 7903BC Hoogeveen

Ontvang updates voor Industriegebied Noord A

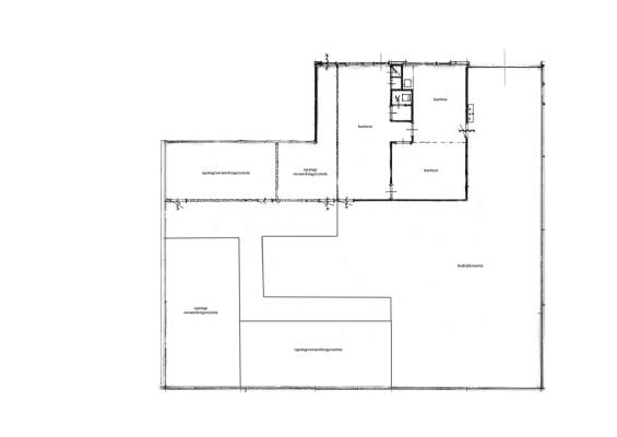
Dit bedrijfspand op het adres de Lavalstraat 13-a te Hoogeveen is breed inzetbaar als bedrijfsruimte. Het betreft hier bestaande bouw uit 1988. Een energielabel is niet beschikbaar. Het pand beschikt over één of meerdere voorzieningen waaronder overheaddeuren, krachtstroom, betonvloer, heater, inbouwarmaturen en te openen ramen. Deze bedrijfsruimte heeft een oppervlakte van 455 m² (in units vanaf 380 m²) en bestaat uit 1 bouwlaag.

Bekijk alle bedrijfspanden in Industriegebied Noord A

Status bedrijfsobject Bedrijfsruimte de Lavalstraat 13-a Hoogeveen

Huidige status
Beschikbaar
Aangeboden sinds
7 oktober 2025
Aanvaarding
Per direct beschikbaar

Eigendom en huurprijs bedrijfsruimte

Laatst bekende huurprijs
€ 2.450 per maand

Omgeving Bedrijfsruimte de Lavalstraat 13-a Hoogeveen

Ligging
Bedrijventerrein
Bereikbaarheid
Bushalte op 1000 m tot 1500 m, NS Intercitystation

Indeling en inrichting bedrijfspand

Oppervlakte
455 m² (in units vanaf 380 m²)
Oppervlakte bedrijfshal
380 m²
Vrije hoogte
5,3 m
Vrije overspanning
20 m

Voorzieningen in de buurt

Boodschappen1,3 km
Cafetaria0,8 km
Kinderdagverblijf1,6 km
Treinstation1,6 km
Alle voorzieningen in Industriegebied Noord A

Binnenkijken bij de Lavalstraat 13-a te Hoogeveen

Meer meldingen in deze omgeving

Onroerend goed
Donderdag 9-10-2025
Dr Anton Philipsstraat 29-a, 7903AL Hoogeveen

112 melding
Maandag 6-10-2025 om 10:19
A G Bellstraat, 7903AD Hoogeveen

112 melding
Maandag 6-10-2025 om 10:19
A G Bellstraat, 7903AD Hoogeveen

112 melding
Maandag 6-10-2025 om 10:19
A G Bellstraat, 7903AD Hoogeveen

Onroerend goed
Dinsdag 30-9-2025
Industrieweg 92, 7903AK Hoogeveen

Faillissement
Maandag 22-9-2025
Morsestraat 4, 7903BL Hoogeveen

Faillissement
Maandag 22-9-2025
Morsestraat 4, 7903BL Hoogeveen

Faillissement
Donderdag 18-9-2025
Dr Anton Philipsstraat 29, 7903AL Hoogeveen

Direct een e-mail ontvangen bij nieuwe meldingen in deze regio?

Meld je dan GRATIS aan voor de Oozo Alert service voor Industriegebied Noord A

Instellen

Meer nieuws in Industriegebied Noord A

Weten hoe eenvoudig het is om af te vallen? Zonder pillen en smeersels en zonder je in het zweet te werken!
Kijk op eenvoudig-afvallen.nl

© 2012 - 2025 OOZO.nl - info@oozo.nl - Gegevens verwijderen? | Disclaimer | Privacy statement