Bedrijfsruimte Wilgenkade 21 Houten

Wilgenkade 21, 3992LL Houten

Ontvang updates voor Kaden

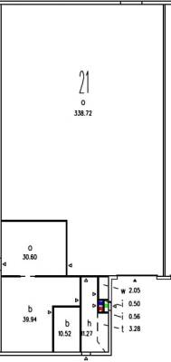
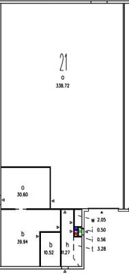
Dit bedrijfspand op het adres Wilgenkade 21 te Houten is breed inzetbaar als bedrijfsruimte. Het betreft hier bestaande bouw uit 1988. Het pand beschikt over één of meerdere voorzieningen waaronder overheaddeuren, betonvloer, heater, inbouwarmaturen en te openen ramen. Deze bedrijfsruimte heeft een oppervlakte van 490 m² en bestaat uit 1 bouwlaag.

Bekijk alle bedrijfspanden in Kaden

Status bedrijfsobject Bedrijfsruimte Wilgenkade 21 Houten

Huidige status
Beschikbaar
Aangeboden sinds
07-01-2026
Aanvaarding
In overleg

Eigendom en huurprijs bedrijfsruimte

Laatst bekende huurprijs
€ 50.000 per jaar
Servicekosten
€ 3 per vierkante meter per jaar (21% BTW van toep

Omgeving Bedrijfsruimte Wilgenkade 21 Houten

Ligging
Bedrijventerrein
Bereikbaarheid
Bushalte op minder dan 500 m, NS Intercitystation

Indeling en inrichting bedrijfspand

Oppervlakte
490 m²
Oppervlakte bedrijfshal
370 m²
Perceel oppervlakte
4.450 m²
Draagvermogen
1.500 kg/m²
Vrije hoogte
6,5 m

Voorzieningen in de buurt

Boodschappen0,0 km
Cafetaria0,0 km
Kinderdagverblijf0,0 km
Treinstation0,0 km
Alle voorzieningen in Kaden

Binnenkijken bij Wilgenkade 21 te Houten

Meer meldingen in deze omgeving

Faillissement
Donderdag 8-1-2026
Meidoornkade 12, 3992AE Houten

Faillissement
Donderdag 8-1-2026
Elzenkade 1, 3992AD Houten

112 melding
Zondag 7-12-2025 om 23:08
Peppelkade, Houten

Onroerend goed
Dinsdag 11-11-2025
Wilgenkade 11, 3992LL Houten

Nieuw bedrijf
November 2025
Wilgenkade 17, 3992LL Houten

Faillissement
Dinsdag 4-11-2025
Wilgenkade 1, 3992LL Houten

Nieuw bedrijf
Oktober 2025
Meidoornkade 22, 3992AE Houten

Nieuw bedrijf
Oktober 2025
Peppelkade 46, 3992AK Houten

Direct een e-mail ontvangen bij nieuwe meldingen in deze regio?

Meld je dan GRATIS aan voor de Oozo Alert service voor Kaden

Instellen

Meer nieuws in Kaden

Weten hoe eenvoudig het is om af te vallen? Zonder pillen en smeersels en zonder je in het zweet te werken!
Kijk op eenvoudig-afvallen.nl

© 2012 - 2026 OOZO.nl - info@oozo.nl - Gegevens verwijderen? | Disclaimer | Privacy statement