Bedrijfsruimte Energieweg 45 Huizen

Energieweg 45, 1271EC Huizen

Ontvang updates voor Industriewijk 't Plaveen

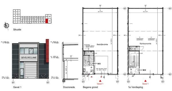
Dit bedrijfspand op het adres Energieweg 45 te Huizen is breed inzetbaar als bedrijfsruimte. Het betreft hier bestaande bouw uit 2011 met energielabel A. Het pand beschikt over één of meerdere voorzieningen waaronder overheaddeuren, betonvloer, toilet en pantry. Deze bedrijfsruimte heeft een oppervlakte van 240 m².

Bekijk alle bedrijfspanden in Industriewijk 't Plaveen

Status bedrijfsobject Bedrijfsruimte Energieweg 45 Huizen

Huidige status
Beschikbaar
Aangeboden sinds
5 januari 2026
Aanvaarding
In overleg

Eigendom en huurprijs bedrijfsruimte

Laatst bekende huurprijs
€ 26.400 per jaar
Servicekosten
€ 70 per vierkante meter per jaar (21% BTW van toe

Omgeving Bedrijfsruimte Energieweg 45 Huizen

Ligging
Bedrijventerrein
Bereikbaarheid
Bushalte op minder dan 500 m, NS Intercitystation

Indeling en inrichting bedrijfspand

Mogelijke functies
Kantoorruimte
Oppervlakte
240 m²
Oppervlakte bedrijfshal
240 m²
Parkeergelegenheid
2 niet-overdekte parkeerplaatsen

Voorzieningen in de buurt

Boodschappen0,6 km
Cafetaria0,5 km
Kinderdagverblijf0,7 km
Treinstation6,9 km
Alle voorzieningen in Industriewijk 't Plaveen

Binnenkijken bij Energieweg 45 te Huizen

Meer meldingen in deze omgeving

Nieuw bedrijf
Januari 2026
Zeilstraat 1, 1271TV Huizen

112 melding
Vrijdag 16-1-2026 om 10:16
Energieweg, 1271EC Huizen

Faillissement
Donderdag 15-1-2026
Havenstraat 74c, 1271AG Huizen

Binnenkijken bij
Donderdag 15-1-2026
IJsbaankade 103, 1271GC Huizen

Onroerend goed
Dinsdag 6-1-2026
Energieweg 10, 1271ED Huizen

Onroerend goed
Dinsdag 6-1-2026
Energieweg 21, 1271EC Huizen

Nieuw bedrijf
Januari 2026
Ambachtsweg 52e, 1271AM Huizen

Nieuw bedrijf
Januari 2026
't Hardestraat 25, 1271TS Huizen

Direct een e-mail ontvangen bij nieuwe meldingen in deze regio?

Meld je dan GRATIS aan voor de Oozo Alert service voor Industriewijk 't Plaveen

Instellen

Meer nieuws in Industriewijk 't Plaveen

Weten hoe eenvoudig het is om af te vallen? Zonder pillen en smeersels en zonder je in het zweet te werken!
Kijk op eenvoudig-afvallen.nl

© 2012 - 2026 OOZO.nl - info@oozo.nl - Gegevens verwijderen? | Disclaimer | Privacy statement