Bedrijfsruimte De Hoogt 21 Loon op Zand

De Hoogt 21, 5175AX Loon op Zand

Ontvang updates voor De Hoogt (Industrieterrein)

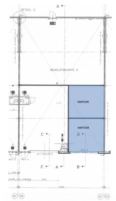
Dit bedrijfspand op het adres De Hoogt 21 te Loon op Zand is breed inzetbaar als bedrijfsruimte. Het betreft hier bestaande bouw uit 2008. Een energielabel is niet beschikbaar. Het pand beschikt over één of meerdere voorzieningen waaronder overheaddeuren, krachtstroom, betonvloer, heater, toilet, pantry, airconditioning en te openen ramen. Deze bedrijfsruimte heeft een oppervlakte van 400 m² en bestaat uit 1 bouwlaag.

Bekijk alle bedrijfspanden in De Hoogt (Industrieterrein)

Status bedrijfsobject Bedrijfsruimte De Hoogt 21 Loon op Zand

Huidige status
Beschikbaar
Aangeboden sinds
07-03-2026
Aanvaarding
In overleg

Eigendom en huurprijs bedrijfsruimte

Laatst bekende huurprijs
€ 2.100 per maand

Omgeving Bedrijfsruimte De Hoogt 21 Loon op Zand

Ligging
Bedrijventerrein

Indeling en inrichting bedrijfspand

Oppervlakte
400 m²
Oppervlakte bedrijfshal
353 m²
Draagvermogen
1.500 kg/m²
Vrije hoogte
6,9 m
Vrije overspanning
10 m
Parkeergelegenheid
3 niet-overdekte parkeerplaatsen

Voorzieningen in de buurt

Boodschappen0,0 km
Cafetaria0,0 km
Kinderdagverblijf0,0 km
Treinstation0,0 km
Alle voorzieningen in De Hoogt (Industrieterrein)

Binnenkijken bij De Hoogt 21 te Loon op Zand

Meer meldingen in deze omgeving

112 melding
Dinsdag 3-3-2026 om 13:45
De Hoogt, 5175AX Loon op Zand

112 melding
Dinsdag 3-3-2026 om 13:45
De Hoogt, 5175AX Loon op Zand

Onroerend goed
Woensdag 11-2-2026
De Hoogt 31-A, 5175AX Loon op Zand

Faillissement
Donderdag 22-1-2026
De Hoogt 77, 5175AX Loon Op Zand

Nieuw bedrijf
December 2025
De Hoogt 12A, 5175AX Loon op Zand

Nieuw bedrijf
December 2025
De Hoogt 12A, 5175AX Loon op Zand

Nieuw bedrijf
Oktober 2025
De Hoogt 31, 5175AX Loon op Zand

Nieuw bedrijf
Juli 2025
De Hoogt 57, 5175AX Loon op Zand

Direct een e-mail ontvangen bij nieuwe meldingen in deze regio?

Meld je dan GRATIS aan voor de Oozo Alert service voor De Hoogt (Industrieterrein)

Instellen

Meer nieuws in De Hoogt (Industrieterrein)

Weten hoe eenvoudig het is om af te vallen? Zonder pillen en smeersels en zonder je in het zweet te werken!
Kijk op eenvoudig-afvallen.nl

© 2012 - 2026 OOZO.nl - info@oozo.nl - Gegevens verwijderen? | Disclaimer | Privacy statement