Bedrijfsruimte Van IJsendijkstraat 176 Purmerend

Van IJsendijkstraat 176, 1442LC Purmerend

Ontvang updates voor De Koog

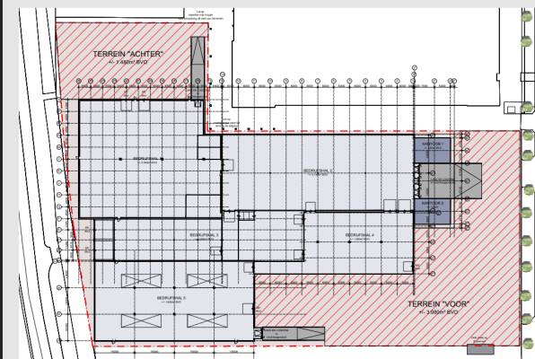
Dit bedrijfspand op het adres Van IJsendijkstraat 176 te Purmerend is breed inzetbaar als bedrijfsruimte. Het betreft hier bestaande bouw uit 1977. Een energielabel is niet beschikbaar. Deze bedrijfsruimte heeft een oppervlakte van 10.160 m² (in units vanaf 4.505 m²) en bestaat uit 1 bouwlaag.

Bekijk alle bedrijfspanden in De Koog

Status bedrijfsobject Bedrijfsruimte Van IJsendijkstraat 176 Purmerend

Huidige status
Beschikbaar
Aangeboden sinds
30-04-2026
Aanvaarding
In overleg

Eigendom en huurprijs bedrijfsruimte

Laatst bekende huurprijs
Huurprijs op aanvraag

Indeling en inrichting bedrijfspand

Oppervlakte
10.160 m² (in units vanaf 4.505 m²)
Oppervlakte bedrijfshal
9.350 m²

Voorzieningen in de buurt

Boodschappen1,8 km
Cafetaria0,2 km
Kinderdagverblijf1,4 km
Treinstation2,0 km
Alle voorzieningen in De Koog

Binnenkijken bij Van IJsendijkstraat 176 te Purmerend

Meer meldingen in deze omgeving

112 melding
Donderdag 30-4-2026 om 11:46
Cantekoogweg, 1442LG Purmerend

112 melding
Maandag 27-4-2026 om 07:27
Cantekoogweg, 1442LG Purmerend

112 melding
Zondag 26-4-2026 om 23:30
Cantekoogweg, 1442LG Purmerend

112 melding
Zaterdag 25-4-2026 om 17:22
Cantekoogweg, 1442LG Purmerend

112 melding
Zaterdag 25-4-2026 om 12:25
Cantekoogweg, 1442LG Purmerend

112 melding
Vrijdag 24-4-2026 om 21:03
Cantekoogweg, 1442LG Purmerend

112 melding
Vrijdag 24-4-2026 om 09:45
Cantekoogweg, 1442LG Purmerend

112 melding
Vrijdag 24-4-2026 om 09:19
Cantekoogweg, 1442LG Purmerend

Direct een e-mail ontvangen bij nieuwe meldingen in deze regio?

Meld je dan GRATIS aan voor de Oozo Alert service voor De Koog

Instellen

Meer nieuws in De Koog

Weten hoe eenvoudig het is om af te vallen? Zonder pillen en smeersels en zonder je in het zweet te werken!
Kijk op eenvoudig-afvallen.nl

© 2012 - 2026 OOZO.nl - info@oozo.nl - Gegevens verwijderen? | Disclaimer | Privacy statement