Bedrijfsruimte Ziel 12 Roosendaal

Ziel 12, 4704RS Roosendaal

Ontvang updates voor Borchwerf-Noord

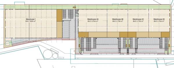
Dit bedrijfspand op het adres Ziel 12 te Roosendaal is breed inzetbaar als bedrijfsruimte. Het betreft hier bestaande bouw . Een energielabel is niet beschikbaar. Het pand beschikt over één of meerdere voorzieningen waaronder lichtstraten, loading docks, overheaddeuren, krachtstroom, sprinkler en toilet. Deze bedrijfsruimte heeft een oppervlakte van 23.598 m² (in units vanaf 2.700 m²) en bestaat uit 2 bouwlagen.

Bekijk alle bedrijfspanden in Borchwerf-Noord

Status bedrijfsobject Bedrijfsruimte Ziel 12 Roosendaal

Huidige status
Beschikbaar
Aangeboden sinds
13 januari 2026
Aanvaarding
In overleg

Eigendom en huurprijs bedrijfsruimte

Laatst bekende huurprijs
Huurprijs op aanvraag

Omgeving Bedrijfsruimte Ziel 12 Roosendaal

Ligging
Bedrijventerrein

Indeling en inrichting bedrijfspand

Oppervlakte
23.598 m² (in units vanaf 2.700 m²)
Oppervlakte bedrijfshal
21.722 m²
Draagvermogen
5.000 kg/m²
Vrije hoogte
12,2 m

Voorzieningen in de buurt

Boodschappen1,3 km
Cafetaria0,5 km
Kinderdagverblijf1,5 km
Treinstation2,6 km
Alle voorzieningen in Borchwerf-Noord

Binnenkijken bij Ziel 12 te Roosendaal

Meer meldingen in deze omgeving

Onroerend goed
Donderdag 22-1-2026
Stepvelden 21-a, 4704RM Roosendaal

Nieuw bedrijf
Januari 2026
Borchwerf 35, 4704RG Roosendaal

Nieuw bedrijf
Januari 2026
Borchwerf 4, 4704RG Roosendaal

112 melding
Dinsdag 20-1-2026 om 22:16
Aanwas, 4704SC Roosendaal

Onroerend goed
Zaterdag 17-1-2026
Belder 7, 4704RK Roosendaal

112 melding
Donderdag 15-1-2026 om 20:14
Gastelseweg, 4704RV Roosendaal

112 melding
Maandag 12-1-2026 om 15:47
Belder, 4704RK Roosendaal

112 melding
Woensdag 7-1-2026 om 11:11
Borchwerf, 4704RG Roosendaal

Direct een e-mail ontvangen bij nieuwe meldingen in deze regio?

Meld je dan GRATIS aan voor de Oozo Alert service voor Borchwerf-Noord

Instellen

Meer nieuws in Borchwerf-Noord

Weten hoe eenvoudig het is om af te vallen? Zonder pillen en smeersels en zonder je in het zweet te werken!
Kijk op eenvoudig-afvallen.nl

© 2012 - 2026 OOZO.nl - info@oozo.nl - Gegevens verwijderen? | Disclaimer | Privacy statement