Horecagelegenheid Buitenhavenweg 144 Schiedam

Buitenhavenweg 144, 3113BE Schiedam

Ontvang updates voor Nieuw-Mathenesse

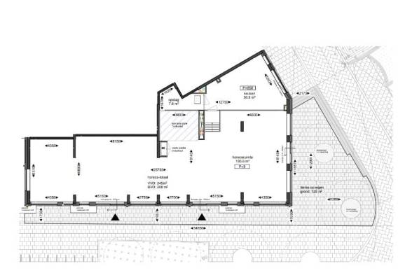
Dit bedrijfspand op het adres Buitenhavenweg 144 te Schiedam is geschikt als Horecagelegenheid. Het betreft hier nieuwbouw met energielabel A+++. De geschatte waarde van dit bedrijfsobject is 735.000 euro. Deze horecagelegenheid heeft een oppervlakte van 245 m² en bestaat uit 1 bouwlaag.

Bekijk alle bedrijfspanden in Nieuw-Mathenesse

Status bedrijfsobject Horecagelegenheid Buitenhavenweg 144 Schiedam

Huidige status
Beschikbaar
Aangeboden sinds
23-01-2026
Aanvaarding
Beschikbaar per 1-8-2027

Eigendom en waarde Horecagelegenheid

Laatst bekende vraagprijs
€ 735.000 vrij op naam (bouwrente van toepassing)

Omgeving Horecagelegenheid Buitenhavenweg 144 Schiedam

Ligging
In woonwijk

Indeling en inrichting bedrijfspand

Oppervlakte
245 m²
Oppervlakte verkoopvloer
245 m²
Parkeergelegenheid
5 overdekte parkeerplaatsen

Voorzieningen in de buurt

Boodschappen0,5 km
Cafetaria0,4 km
Kinderdagverblijf0,5 km
Treinstation1,4 km
Alle voorzieningen in Nieuw-Mathenesse

Binnenkijken bij Buitenhavenweg 144 te Schiedam

Meer meldingen in deze omgeving

Onroerend goed
Zaterdag 17-1-2026
Buitenhavenweg 112- 142, 3113BE Schiedam

112 melding
Vrijdag 16-1-2026 om 13:26
Fortunaweg, 3113AN Schiedam

112 melding
Dinsdag 13-1-2026 om 23:31
Van Deventerstraat, 3113AL Schiedam

112 melding
Dinsdag 13-1-2026 om 23:13
Couwenhovenstraat, 3113AA Schiedam

112 melding
Dinsdag 13-1-2026 om 23:07
Couwenhovenstraat, Schiedam

112 melding
Maandag 15-12-2025 om 13:03
Couwenhovenstraat, 3113AA Schiedam

Nieuw bedrijf
December 2025
Buitenhavenweg 114, 3113BE Schiedam

112 melding
Zondag 30-11-2025 om 19:19
Buitenhavenweg, 3113BD Schiedam

Direct een e-mail ontvangen bij nieuwe meldingen in deze regio?

Meld je dan GRATIS aan voor de Oozo Alert service voor Nieuw-Mathenesse

Instellen

Meer nieuws in Nieuw-Mathenesse

Weten hoe eenvoudig het is om af te vallen? Zonder pillen en smeersels en zonder je in het zweet te werken!
Kijk op eenvoudig-afvallen.nl

© 2012 - 2026 OOZO.nl - info@oozo.nl - Gegevens verwijderen? | Disclaimer | Privacy statement