Bedrijfsruimte Lelystraat 17 Sliedrecht

Lelystraat 17, 3364AH Sliedrecht

Ontvang updates voor Bedrijventerrein Nijverwaard

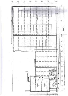
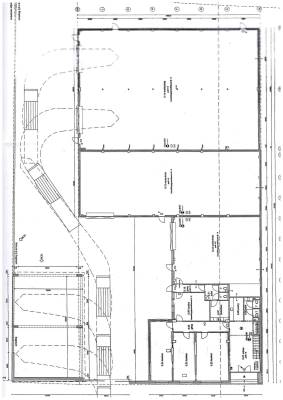
Dit bedrijfspand op het adres Lelystraat 17 te Sliedrecht is breed inzetbaar als bedrijfsruimte. Het betreft hier bestaande bouw uit 1964. Een energielabel is niet beschikbaar. Het pand beschikt over één of meerdere voorzieningen waaronder overheaddeuren, betonvloer, heater, toilet, pantry en mechanische ventilatie. Deze bedrijfsruimte heeft een oppervlakte van 960 m² en bestaat uit 1 bouwlaag.

Bekijk alle bedrijfspanden in Bedrijventerrein Nijverwaard

Status bedrijfsobject Bedrijfsruimte Lelystraat 17 Sliedrecht

Huidige status
Beschikbaar
Aangeboden sinds
20 januari 2026
Aanvaarding
In overleg

Eigendom en huurprijs bedrijfsruimte

Laatst bekende huurprijs
€ 9.500 per maand

Omgeving Bedrijfsruimte Lelystraat 17 Sliedrecht

Ligging
Bedrijventerrein

Indeling en inrichting bedrijfspand

Oppervlakte
960 m²
Oppervlakte bedrijfshal
750 m²
Perceel oppervlakte
2.078 m²
Draagvermogen
2.000 kg/m²
Vrije hoogte
7 m

Voorzieningen in de buurt

Boodschappen1,4 km
Cafetaria0,8 km
Kinderdagverblijf1,2 km
Treinstation0,8 km
Alle voorzieningen in Bedrijventerrein Nijverwaard

Binnenkijken bij Lelystraat 17 te Sliedrecht

Meer meldingen in deze omgeving

112 melding
Donderdag 29-1-2026 om 12:46
Leeghwaterstraat, 3364AE Sliedrecht

112 melding
Donderdag 29-1-2026 om 08:53
Leeghwaterstraat, 3364AE Sliedrecht

112 melding
Donderdag 29-1-2026 om 08:51
Beyerinckstraat, 3364AX Sliedrecht

112 melding
Donderdag 29-1-2026 om 08:38
Brouwerstraat, 3364BE Sliedrecht

112 melding
Donderdag 29-1-2026 om 08:35
Bruningsstraat, 3364AA Sliedrecht

112 melding
Donderdag 29-1-2026 om 08:34
Bruningsstraat, 3364AA Sliedrecht

112 melding
Donderdag 29-1-2026 om 08:30
Vierlinghstraat, 3364AS Sliedrecht

112 melding
Donderdag 29-1-2026 om 07:55
Beyerinckstraat, 3364AX Sliedrecht

Direct een e-mail ontvangen bij nieuwe meldingen in deze regio?

Meld je dan GRATIS aan voor de Oozo Alert service voor Bedrijventerrein Nijverwaard

Instellen

Meer nieuws in Bedrijventerrein Nijverwaard

Weten hoe eenvoudig het is om af te vallen? Zonder pillen en smeersels en zonder je in het zweet te werken!
Kijk op eenvoudig-afvallen.nl

© 2012 - 2026 OOZO.nl - info@oozo.nl - Gegevens verwijderen? | Disclaimer | Privacy statement